GM Service Manual Online
For 1990-2009 cars only
Makes
🢒
Buick
🢒
2007
🢒
LaCrosse
🢒 Fuel Controls - Fuel Pump and Injectors
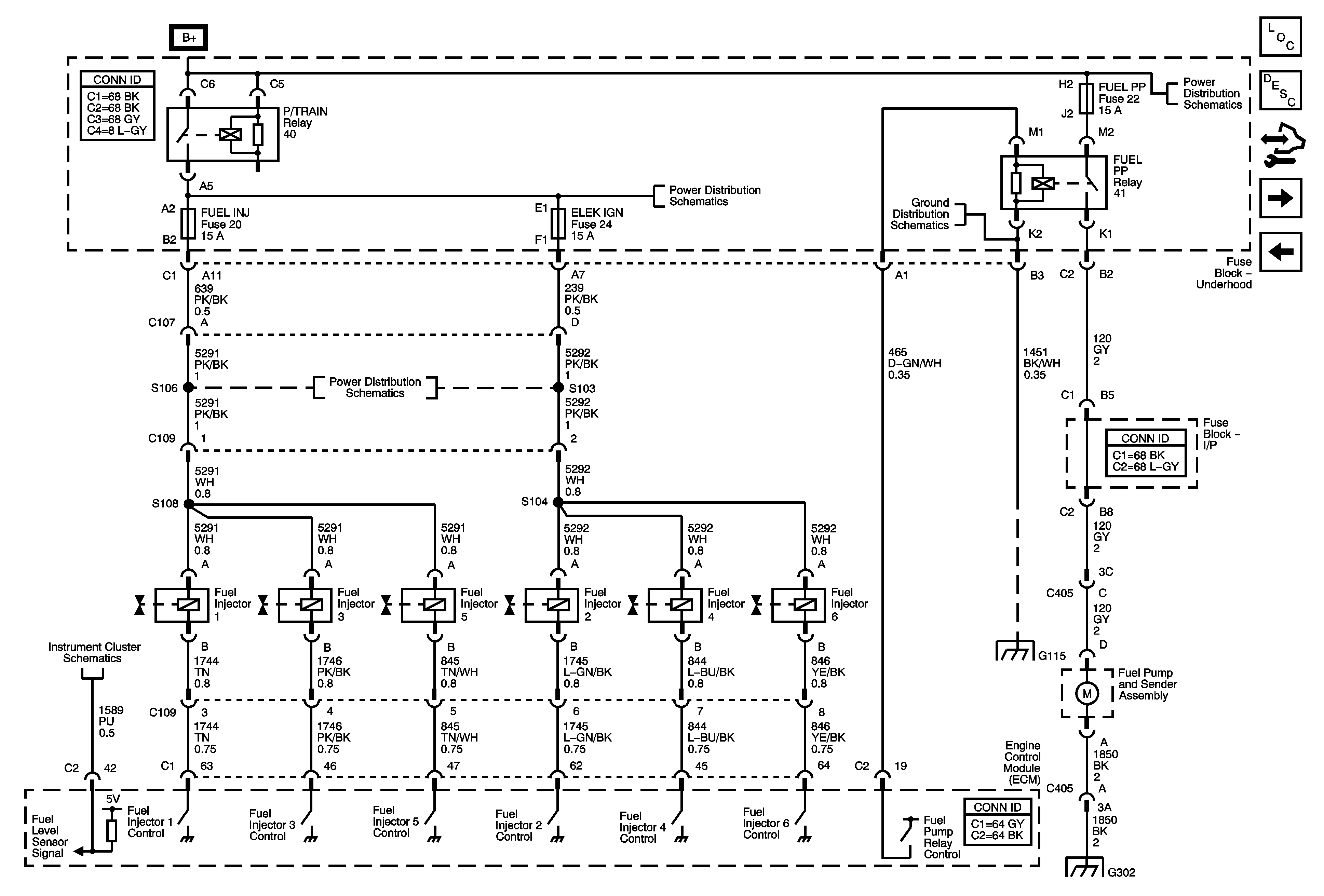
Fuel Controls - Fuel Pump and Injectors
Fuel Controls - Fuel Pump and Injectors
Master Electrical Component List
Fuel System Description
Control Module References
EVAP Controls
Ignition Controls - CMP Sensors and Solenoids
Fuse Block-Underhood B+ Bus
G115 (LY7)
Fuse Block-Underhood B+ Bus
Fuse Block - Underhood ELEK IGN, FUEL INJ, and 02 SSR Fuses (LY7)
Power, Ground, Serial Data, and Gages LY7
G115 (LY7)
G302