GM Service Manual Online
For 1990-2009 cars only
Makes
🢒
Buick
🢒
2006
🢒
Lucerne
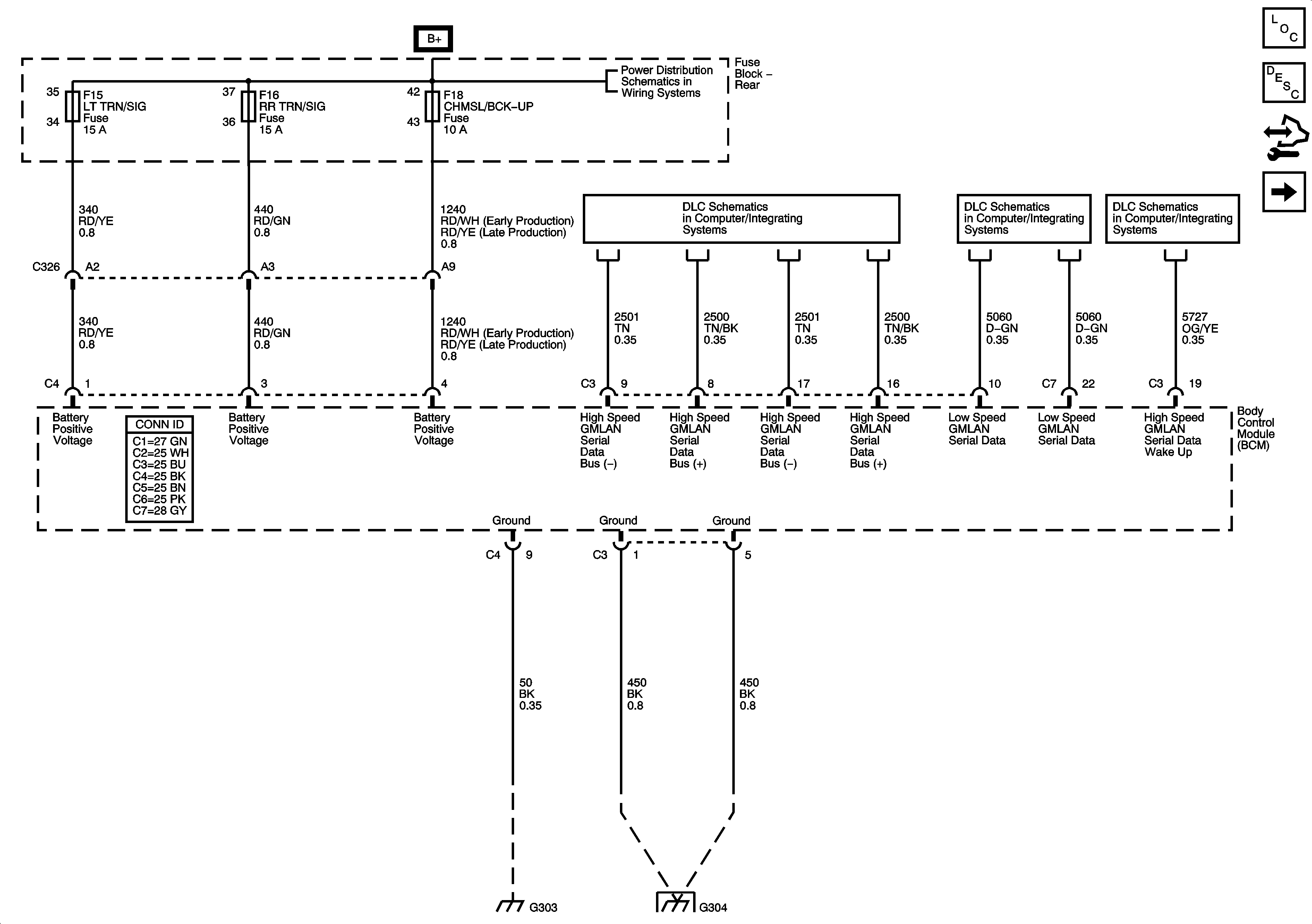
🢒 BCM Power, Ground, and DLC
BCM Power, Ground, and DLC
BCM Power, Ground and DLC
Master Electrical Component List
Body Control System Description and Operation
Control Module References
BCM Inputs and Outputs, 1 of 4
Rear Fuse Block B+
High Speed Serial Data
Power, Ground, and Low Speed GMLAN
Serial Data Wake Up
G101, G110, G111, G114, G115, G302, G303, G306, G307
G304