GM Service Manual Online
For 1990-2009 cars only
Makes
🢒
Buick
🢒
2003
🢒
Regal
🢒
Body and Accessories
🢒
Doors
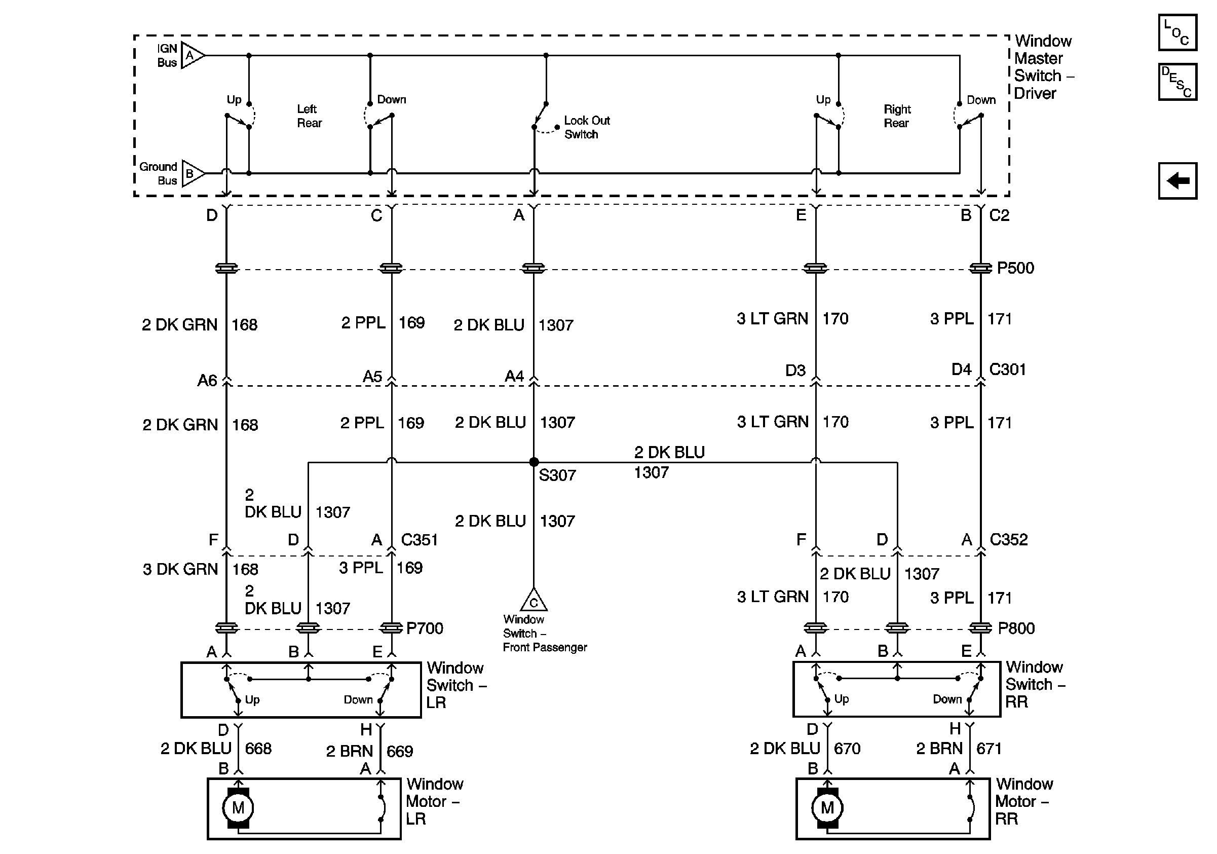
🢒 Power Window Schematics
Figure
1:
Front
Master Electrical Component List
Power Windows Description and Operation
Rear
Power Sunroof Schematics
Door and Seat Swtiches
Rear
Rear
Rear
G301, Page 1 of 2
Figure
2:
Rear
Master Electrical Component List
Power Windows Description and Operation
Front
Front
Front
Front