GM Service Manual Online
For 1990-2009 cars only
Figure 1:

TCC Solenoid Control, SS Valve Control and TFT Sensor


Object Number: 1500174  Size: FS
Master Electrical Component List
Electronic Component Description
Control Module References
Switches, ISS and Pressure Control - 3.4L
Ignition Switch - ACCY/RUN, and RUN/START Bus Bars, and BCM-ACC, IGN 1 MDL, INTEMM, and SIR Fuses
FUEL INJ and TRANS SOL Fuses - 3.4L
Figure 2:

Switches, ISS and Pressure Control


Object Number: 1500176  Size: FS
Master Electrical Component List
Electronic Component Description
Control Module References
Transaxle Range Switch and VSS - 3.4L
ICC Solenoid Control, SS Valve Cont. and TFT Sensor - 3.4L
Figure 3:

Transaxle Range Switch and VSS


Object Number: 1500179  Size: FS
Master Electrical Component List
Electronic Component Description
Control Module References
Switches, ISS and Pressure Control - 3.4L
G132 - LY7 and G111
G132 - LY7 and G111
Figure 4:

Transmission Control Module Power, Grounds and Serial Data -- LY7


Object Number: 1500183  Size: FS
Master Electrical Component List
Electronic Component Description
Control Module References
Stop Lamp Switch, TFT Sensor, TCC Valve and Shift Solenoids - 3.6L
Automatic Transmission Schematic Icons
Ignition Switch - ACCY/RUN/START, RUN, and START Bus Bars and BLWR, IGN0, and KEY SOL Fuses
BTSI (3.4L), CRUISE, IGN 1 MAIN, and TRN SIG Fuses
Data Link Connector (DLC)
Power, Ground, MIL, and Serial Data
G130 and G131 - LY7
Figure 5:

Stop Lamp Switch, Trans Fluid Temperature Sensor, TCC Valve and Shift Solenoids (LY7)


Object Number: 1500184  Size: FS
Master Electrical Component List
Electronic Component Description
Control Module References
Pressure Control Soleniod, TCC Release Switch, Input Shaft Speed Sensor and Vehicle Speed Sensor - 3.6L
TCM Power, Grounds and Serial Data - 3.6L
BATT 1, BCML, HUD, HZD FL, INKEY, IP MDL, RADIO, and RD AMP Fuses
ABS, AWD, ECM IGN1, TRANS Fuses and IGNITION Relay - 3.6L
Turn Signal/Hazard Control
Controlled/Monitored Subsystem References
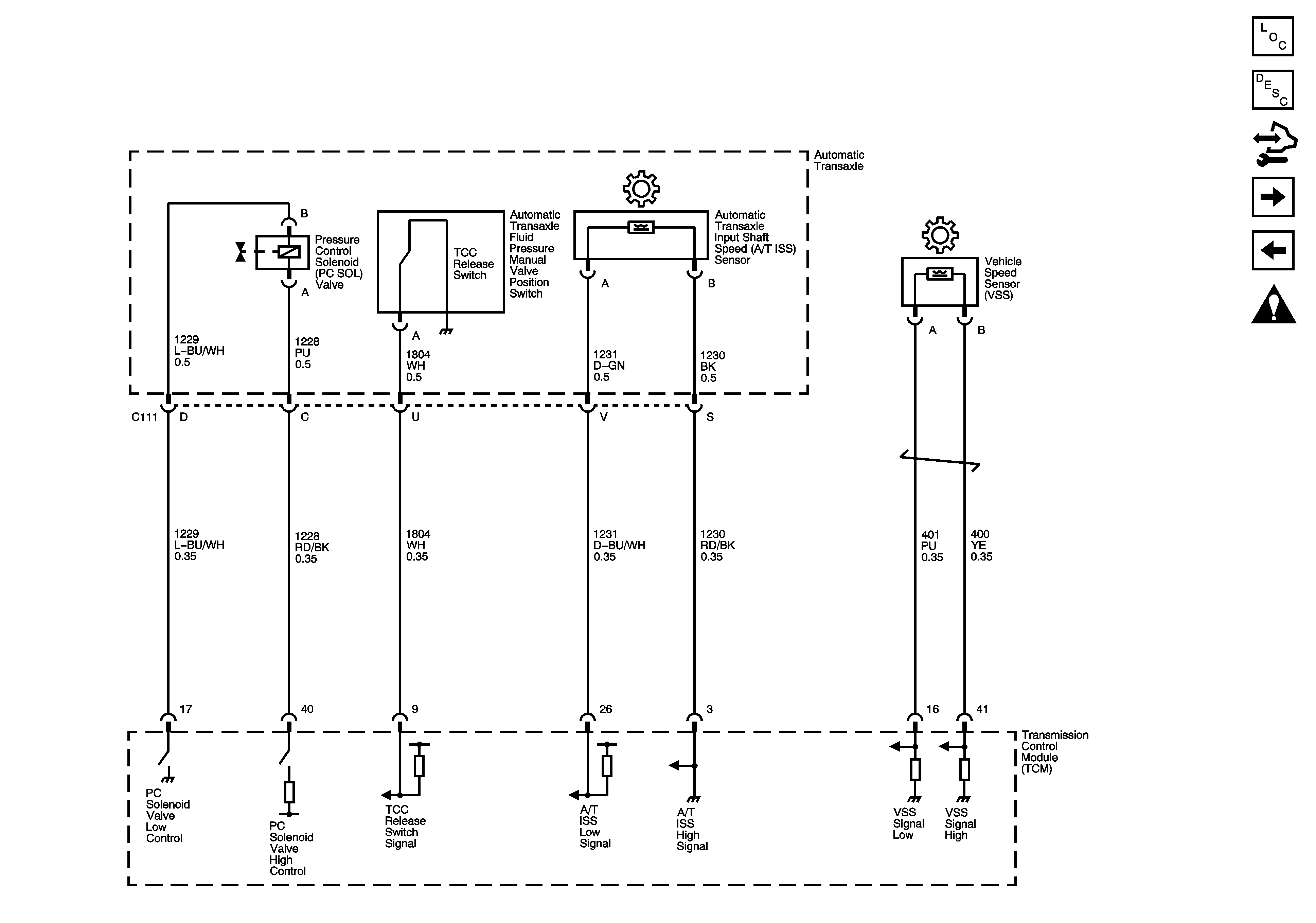
Figure 6:

Pressure Control Soleniod, TCC Release Switch, Input Shaft Speed Sensor and Vehicle SPeed Sensor (LY7)


Object Number: 1500188  Size: FS
Master Electrical Component List
Electronic Component Description
Control Module References
Transmission Internal Mode Switch - 3.6L
Stop Lamp Switch, TFT Sensor, TCC Valve and Shift Solenoids - 3.6L
Automatic Transmission Schematic Icons
Figure 7:

Transmission Internal Range Switch (LY7)


Object Number: 1500189  Size: FS
Master Electrical Component List
Electronic Component Description
Control Module References
Pressure Control Soleniod, TCC Release Switch, Input Shaft Speed Sensor and Vehicle Speed Sensor - 3.6L
OBD II Symbol Description Notice
G130 and G131 - LY7