GM Service Manual Online
For 1990-2009 cars only
Makes
🢒
Cadillac
🢒
2003
🢒
CTS
🢒 Headlamp Schematics ( ExportDaytime Running Lights (DRL) )
Headlamp Schematics ( ExportDaytime Running Lights (DRL) )
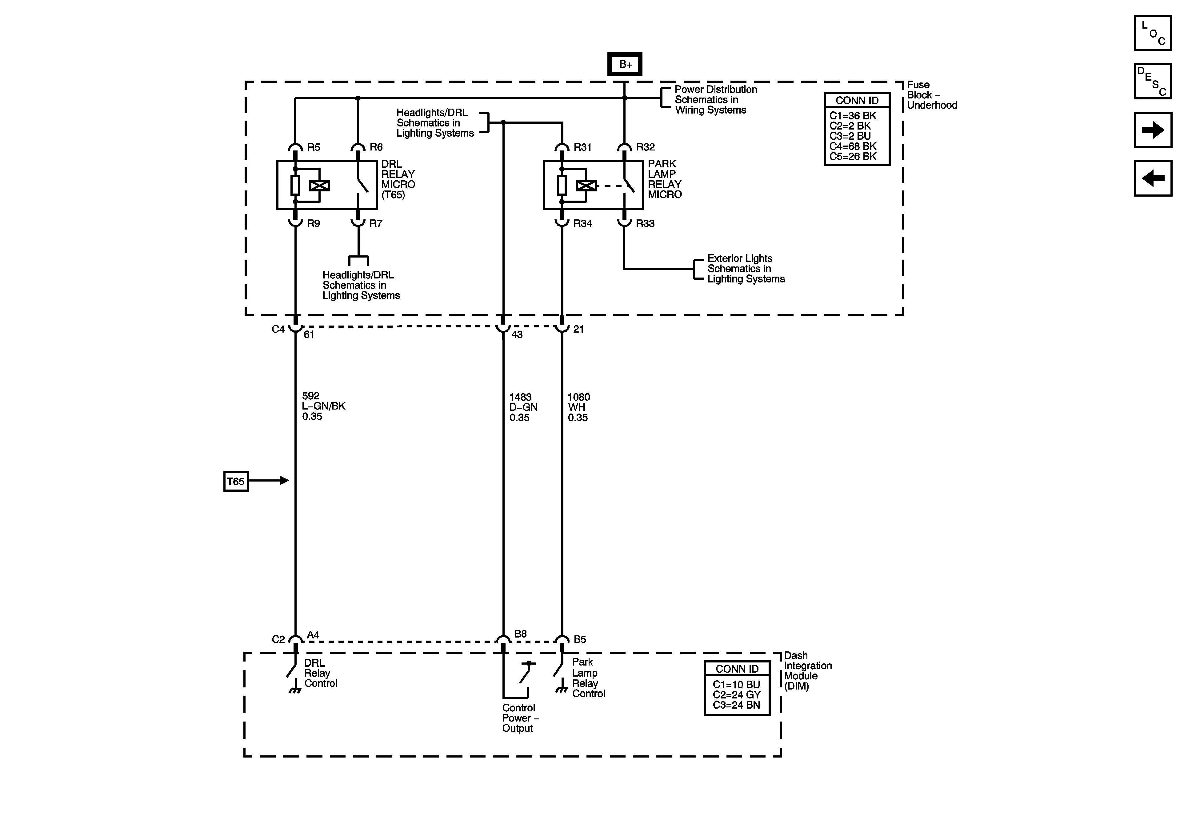
Export Daytime Running Lamps (DRL)
Headlamp Schematics ( Domestic Daytime Running Lights (DRL) )
Exterior Lighting Schematics Headlamp assemblys, Power
Class 2 (LHD) 1 of 2