GM Service Manual Online
For 1990-2009 cars only
Figure 1:

Driver Door Module (DDM) Power, Ground and Serial Data


Object Number: 1317753  Size: FS
Master Electrical Component List
Door Ajar Indicator Description and Operation
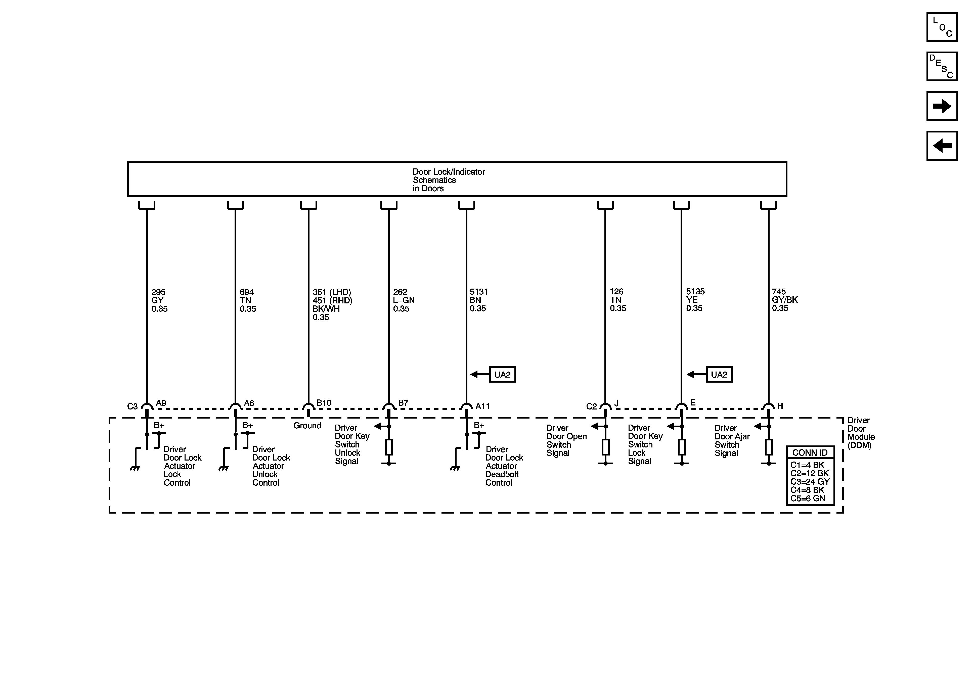
Driver Door Module (DDM) Controlled/Monitored Subsystem References - 1 of 2
Left Rear Fuse Block B+ Bus
Right Rear Fuse Block B+ Bus
Right Rear Fuse Block DR MOD PWR Circuit Breaker, CANISTER VENT, RIM/IGN SW, R FRT HTD SEAT MOD and POWER SOUNDER Fuses
Class 2 Serial Data Bus - LHD - 1 of 2
G200
Figure 2:

Driver Door Module (DDM) Controlled/Monitored Subsystem References (1 of 2)


Object Number: 1317754  Size: FS
Master Electrical Component List
Door Ajar Indicator Description and Operation
Driver Door Module (DDM) Controlled/Monitored Subsystem References - 2 of 2
Driver Door Module (DDM) Power, Ground, and Serial Data
Driver Outside Rearview Mirror (A45)
Front Power Window Switches and Motors
Power, Ground, and Serial Data - 2 of 2
Figure 3:

Driver Door Module (DDM) Controlled/Monitored Subsystem References (2 of 2)


Object Number: 1317756  Size: FS
Master Electrical Component List
Door Ajar Indicator Description and Operation
Front Passenger Door Module (FPDM) Power, Ground, and Serial Data
Driver Door Module (DDM) Controlled/Monitored Subsystem References - 1 of 2
Driver Door Module (DDM), Driver Door Switch Assembly (DDSA), Driver Door Lock Switch and Latch Assembly
Figure 4:

Front Passenger Door Module (FPDM) Power, Ground and Serial Data


Object Number: 1317757  Size: FS
Master Electrical Component List
Door Ajar Indicator Description and Operation
Front Passenger Door Module (FPDM) Controlled/Monitored Subsystem References - 1 of 2
Driver Door Module (DDM) Controlled/Monitored Subsystem References - 2 of 2
Right Rear Fuse Block B+ Bus
Right Rear Fuse Block DR MOD PWR Circuit Breaker, CANISTER VENT, RIM/IGN SW, R FRT HTD SEAT MOD and POWER SOUNDER Fuses
Class 2 Serial Data Bus - LHD - 2 of 2
G201
Figure 5:

Front Passenger Door Module (FPDM) Controlled/Monitored Subsystem References (1 of 2)


Object Number: 1317758  Size: FS
Master Electrical Component List
Door Ajar Indicator Description and Operation
Front Passenger Door Module (FPDM) Controlled/Monitored Subsystem References - 2 of 2
Front Passenger Door Module (FPDM) Power, Ground, and Serial Data
Front Power Window Switches and Motors
Front Passenger Door Module (FPDM), Front Passenger Door Lock Switch and Latch Assembly
Power, Ground, and Serial Data - 2 of 2
Figure 6:

Front Passenger Door Module (FPDM) Controlled/Monitored Subsystem References (2 of 2)


Object Number: 1317759  Size: FS
Master Electrical Component List
Door Ajar Indicator Description and Operation
Left Rear Door Module (LRDM) Power, Ground, and Serial Data
Front Passenger Door Module (FPDM) Controlled/Monitored Subsystem References - 1 of 2
Passenger Outside Rearview Mirror (A45)
Figure 7:

Left Rear Door Module (LRDM) Power, Ground and Serial Data


Object Number: 1317760  Size: FS
Master Electrical Component List
Door Ajar Indicator Description and Operation
Left Rear Door Module (LRDM) Controlled/Monitored Subsystem References
Front Passenger Door Module (FPDM) Controlled/Monitored Subsystem References - 2 of 2
Left Rear Fuse Block B+ Bus
Right Rear Fuse Block B+ Bus
Left Rear Fuse Block SEAT Circuit Breaker, TRUNK Fuse/Relay, AMP, AUDIO, DRIVER DR MOD and REAR DR MOD Fuses
Right Rear Fuse Block DR MOD PWR Circuit Breaker, CANISTER VENT, RIM/IGN SW, R FRT HTD SEAT MOD and POWER SOUNDER Fuses
Class 2 Serial Data Bus - LHD - 1 of 2
Rear Power Window Switches and Motors
G200
Figure 8:

Left Rear Door Module (LRDM) Controlled/Monitored Subsystem References


Object Number: 1317761  Size: FS
Master Electrical Component List
Door Ajar Indicator Description and Operation
Right Rear Door Module (RRDM) Power, Ground, and Serial Data
Left Rear Door Module (LRDM) Power, Ground, and Serial Data
Rear Door Modules and Door Latch Assemblies
Rear Power Window Switches and Motors
Power, Ground, and Serial Data - 2 of 2
Figure 9:

Right Rear Door Module (RRDM) Power, Ground and Serial Data


Object Number: 1317762  Size: FS
Master Electrical Component List
Door Ajar Indicator Description and Operation
Right Rear Door Module (RRDM) Controlled/Monitored Subsystem References
Left Rear Door Module (LRDM) Controlled/Monitored Subsystem References
Left Rear Fuse Block B+ Bus
Left Rear Fuse Block SEAT Circuit Breaker, TRUNK Fuse/Relay, AMP, AUDIO, DRIVER DR MOD and REAR DR MOD Fuses
Right Rear Fuse Block B+ Bus
Right Rear Fuse Block DR MOD PWR Circuit Breaker, CANISTER VENT, RIM/IGN SW, R FRT HTD SEAT MOD and POWER SOUNDER Fuses
Class 2 Serial Data Bus - LHD - 2 of 2
Rear Power Window Switches and Motors
G201
Figure 10:

Right Rear Door Module (RRDM) Controlled/Monitored Subsystem References


Object Number: 1317763  Size: FS
Master Electrical Component List
Door Ajar Indicator Description and Operation
Right Rear Door Module (RRDM) Power, Ground, and Serial Data
Rear Door Modules and Door Latch Assemblies
Rear Power Window Switches and Motors
Power, Ground, and Serial Data - 2 of 2