GM Service Manual Online
For 1990-2009 cars only

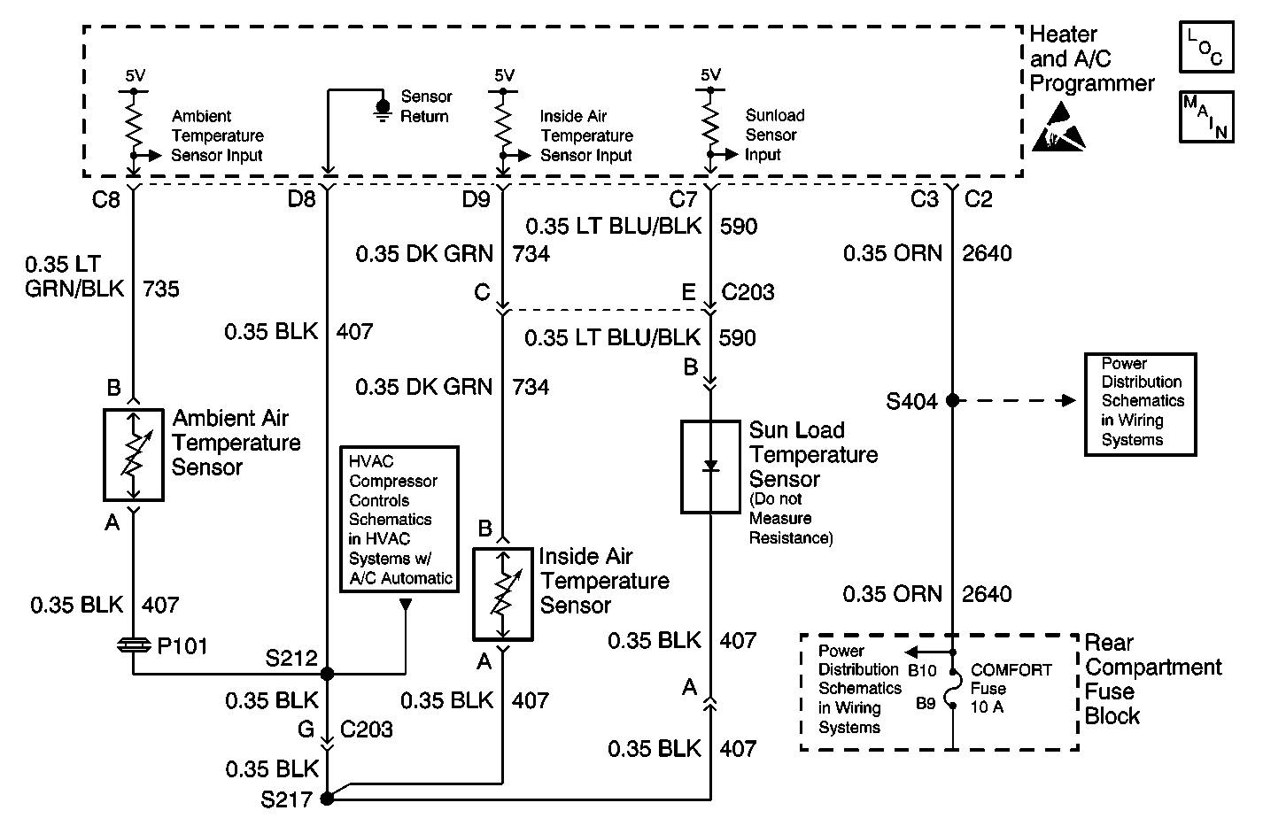
Object Number: 594846  Size: MF
HVAC Components
Temperature Sensors
Handling ESD Sensitive Parts Notice
ANTENNA, RSS, HTD MIR, and HTD BACKLT Fuses
ANTENNA, RSS, HTD MIR, and HTD BACKLT Fuses
Temperature Sensors

Circuit Description

The ambient temperature sensor is a thermistor that controls the signal voltage to the heater and A/C programmer. The heater and A/C programmer supplies the voltage on CKT 735. When the sensor is cold, the following conditions exist:

    • The resistance is high.
    • The heater and A/C programmer reads a high signal voltage at pin C8.

When the sensor warms, the following actions occur:

    • The resistance is reduced.
    • The signal voltage is pulled low through CKT 407.

The signal voltage varies from 5 V (open circuit) and 0 V (short circuit).

Conditions for Running the DTC

Turn the ignition to the ON position.

Diagnostic Aids

If the ambient temperature drops below approximately -38°C (-37°F), ignore this DTC.

Action Taken When the DTC Sets

    • Dashes are displayed on the IPC or CCP (with the analog IPC) temperature display.
    • A default value of 15° C (60° F) is used in order to allow the operation of the A/C system.

Notes On Intermittence

If an intermittent DTC B1310 is set, connect the Scan Tool and select the following options:

    • Data list
    • Opens/shorts data
    • Observe the reading

Manipulate the wiring while observing the Scan Tool . If a failure is induced, the reading will jump. Inspect for a poor terminal contact, and an obstructed or defective sensor.

Test Description

  1. Perform the Diagnostic System Check before continuing with the diagnosis of this DTC.

  1. The Scan Tool displays the ambient temperature. Jumping the harness connector determines whether the wiring or the sensor is the cause.

Step

Action

Value(s)

Yes

No

1

Did you perform the diagnostic system check?

--

Go to Step 2

Go to Diagnostic System Check

2

  1. Turn the ignition to the ON position.
  2. Connect the Scan Tool .
  3. Disconnect the sensor. Attach a fused jumper between the terminals.

Did the DTC change from B1310 to B1311?

--

Go to Step 4

Go to Step 3

3

Measure the voltage at terminal B.

Is the measured voltage approximately equal to the specified value?

5  V

Go to Step 6

Go to Step 5

4

  1. Replace the sensor. Refer to Ambient Temperature Sensor Replacement
  2. Using the Scan Tool clear the code.

Is the repair complete?

--

Go to Diagnostic System Check

--

5

Measure the voltage at terminal C8.

Is the measured voltage approximately equal to the specified value?

5  V

Go to Step 8

Go to Step 7

6

  1. Repair the open in CKT 407 between terminal A and S212. Refer to Wiring Repairs in Wiring Systems.
  2. Clear the code.

Is the repair complete?

--

Go to Diagnostic System Check

--

7

  1. Inspect the terminal contact.
  2. If OK, replace the heater and A/C programmer. Refer to Programmer Replacement
  3. Using the Scan Tool clear the code.

Is the repair complete?

--

Go to Diagnostic System Check

--

8

  1. Repair the open in CKT 735. Refer to Wiring Repairs in Wiring Systems.
  2. Using the Scan Tool clear the code.

Is the repair complete?

--

Go to Diagnostic System Check

--