GM Service Manual Online
For 1990-2009 cars only
Makes
🢒
Chevrolet
🢒
2002
🢒
Chevrolet C-Series Medium Duty Truck B7
🢒 Accelerator Pedal and Throttle Actuator Control (TAC) Module
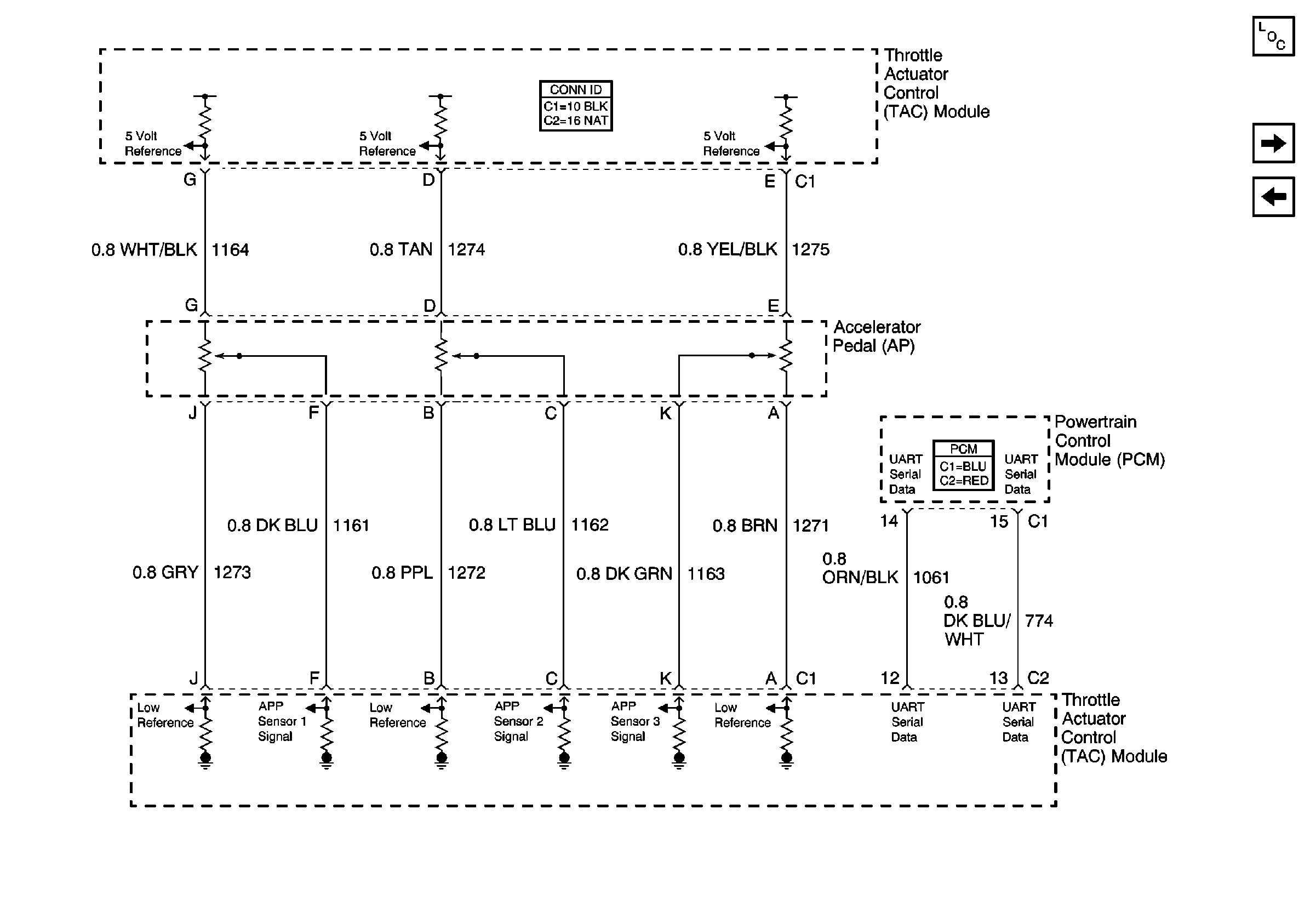
Accelerator Pedal and Throttle Actuator Control (TAC) Module
Accelerator Pedal and Throttle Actuator Control (TAC) Module
Master Electrical Component List
Clutch Pedal Position (CPP), Turn Signal/Multifunction and High Idle Switches and Throttle Actuator Control (TAC) Module
Throttle Actuator Control (TAC) Motor, TAC Module and Throttle Position(TP) Sensor