GM Service Manual Online
For 1990-2009 cars only
Makes
🢒
Chevrolet
🢒
2008
🢒
Epica
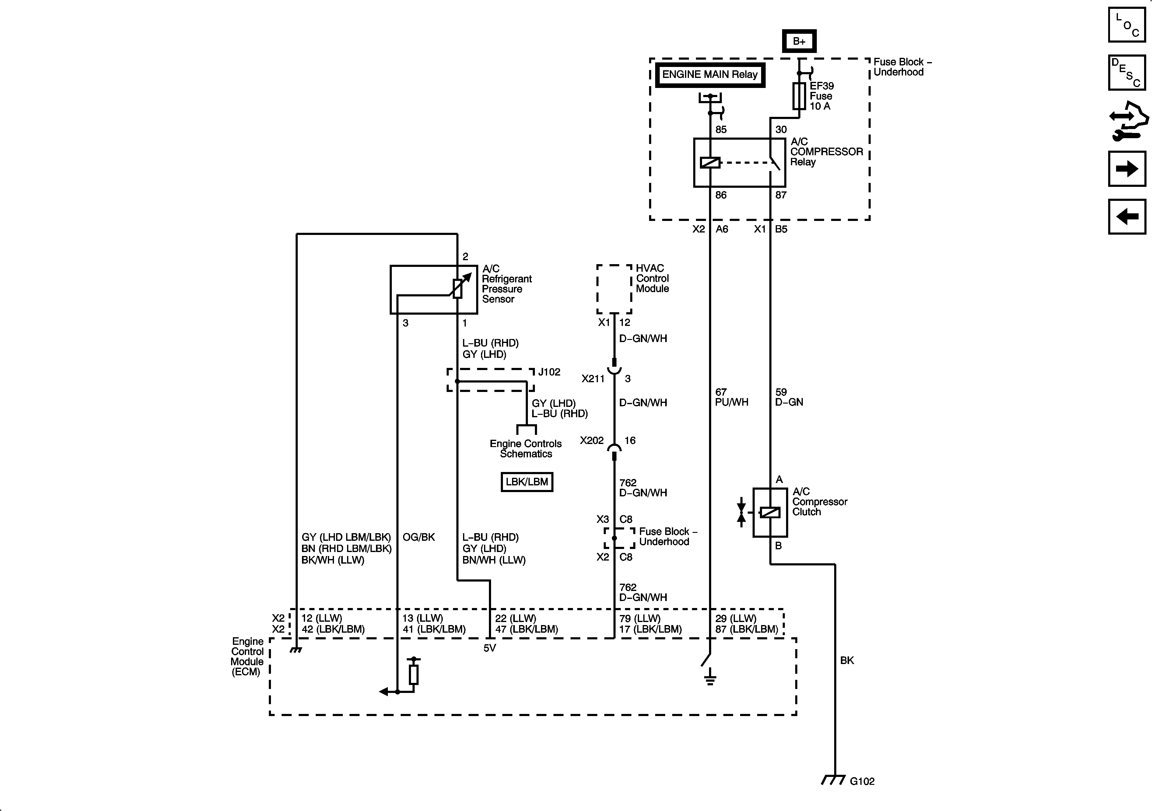
🢒 Compressor Controls
Compressor Controls
Compressor Controls
Master Electrical Component List
Automatic HVAC Description and Operation
Control Module References
Air Delivery Actuators
Blower Controls
B+ Bus
B+ Bus
Fuel Controls - EVAP Controls
G102