GM Service Manual Online
For 1990-2009 cars only
Makes
🢒
Chevrolet
🢒
2008
🢒
Epica
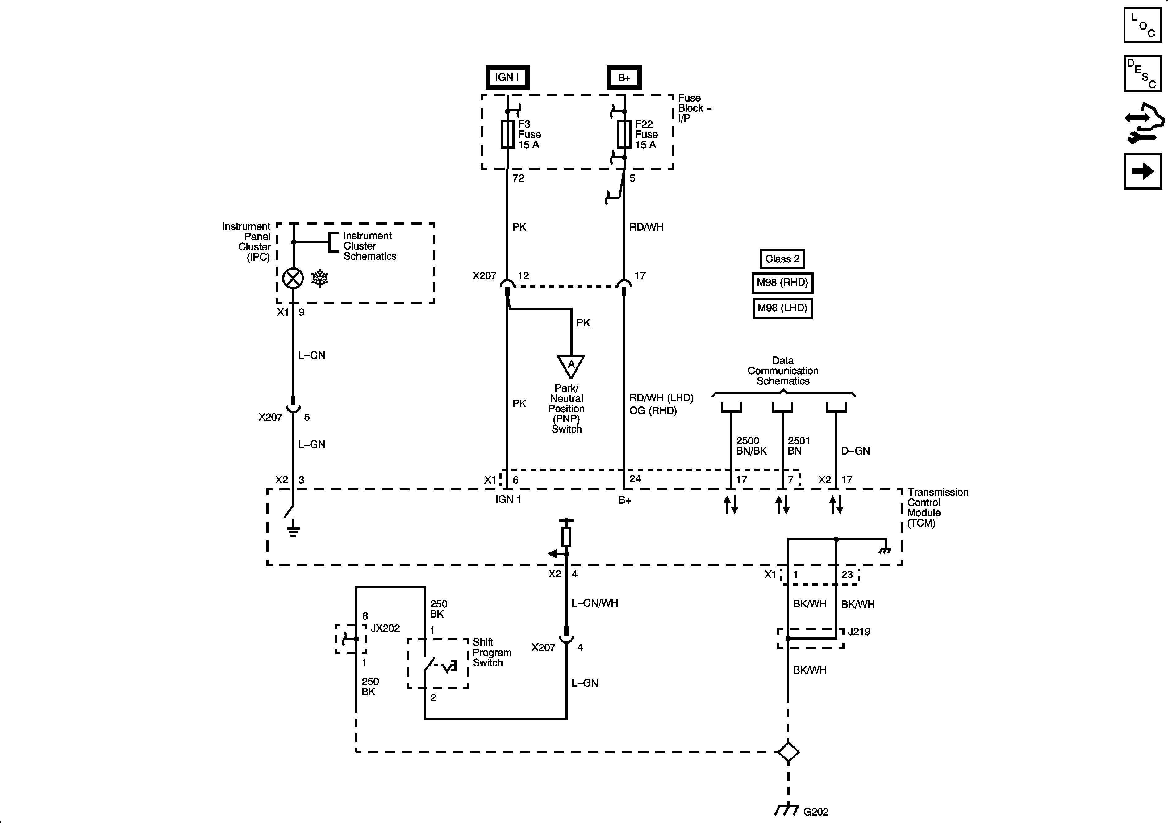
🢒 Power, Ground, Serial Data, Hold Mode
Power, Ground, Serial Data, Hold Mode
Power, Ground, Serial Data, Hold Mode
Master Electrical Component List
Transmission General Description
Control Module References
Solenoids, Stop Lamp, TFT Sensor
Ignition Switch
Fuse Block - I/P F8, F9, F15, F22, F23 Fuses
Power, Ground, Class 2
PNP Switch, Shift Lever
G202, 1 of 2
Indicators 2 of 3
High Speed GMLAN - M98 (RHD)
High Speed GMLAN - M98 (LHD)
G202, 2 of 2