GM Service Manual Online
For 1990-2009 cars only
Makes
🢒
Chevrolet
🢒
2007
🢒
Silverado Classic - 2WD
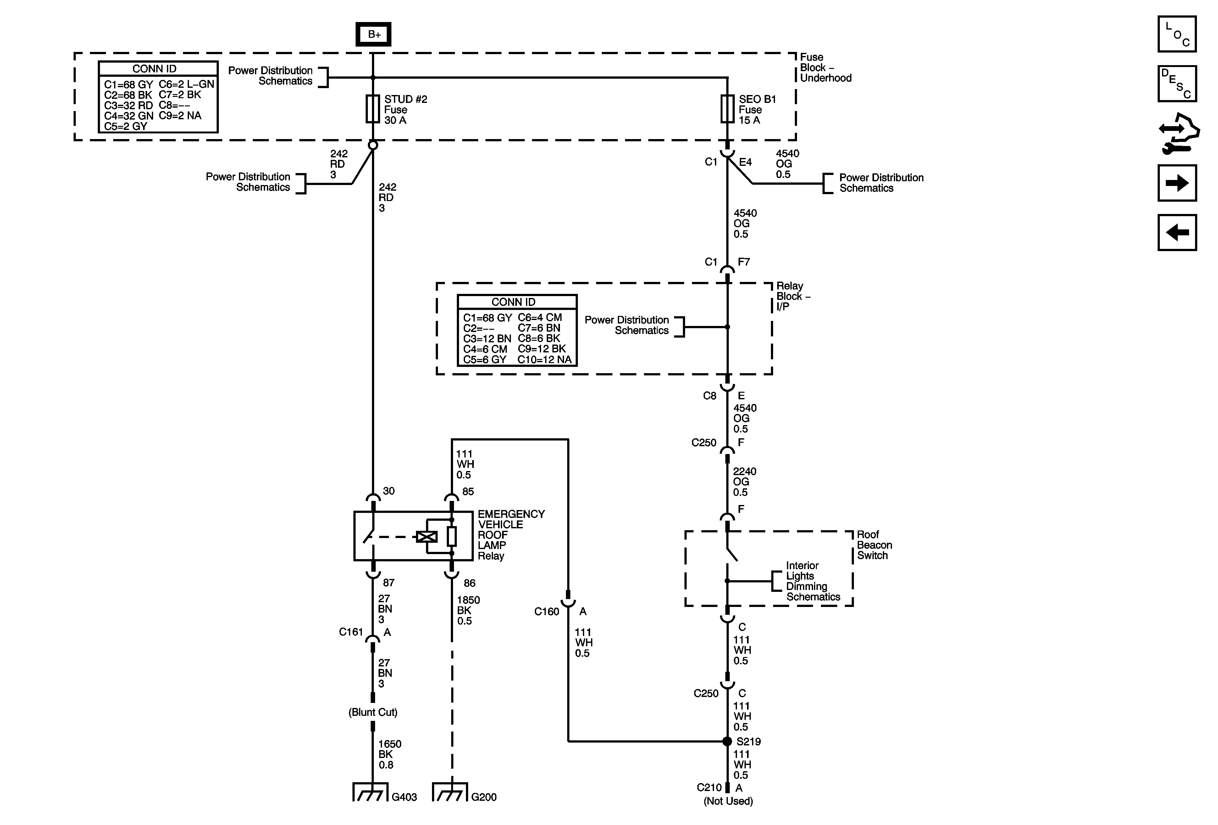
🢒 Emergency Vehicle Lighting (5Y0)
Emergency Vehicle Lighting (5Y0)
Emergency Vehicle Lighting (5Y0)
Master Electrical Component List
Exterior Lighting Systems Description and Operation
Control Module References
Wrecker Lighting (5X7)
Roof Beacon Wiring (5G4/TRW)
B+ Bus Bar
ABS, AUX HTR PMP, ESCM, HCM-B, MBEC1, RTD, STUD 1, STUD 2, TRANS PUMP, and VSES/ECAS Fuses and RT DOOR and SEAT Circuit Breakers
IPC/DIC, LH HID, RH HID, SEO B1, and TBC BATT Fuses
IPC/DIC, LH HID, RH HID, SEO B1, and TBC BATT Fuses
LED Dimming Supply - 2 of 2
G200 - 2 of 2
G403