GM Service Manual Online
For 1990-2009 cars only
Makes
🢒
Chevrolet
🢒
2007
🢒
Silverado - 2WD
🢒 AN3
AN3
AN3
Master Electrical Component List
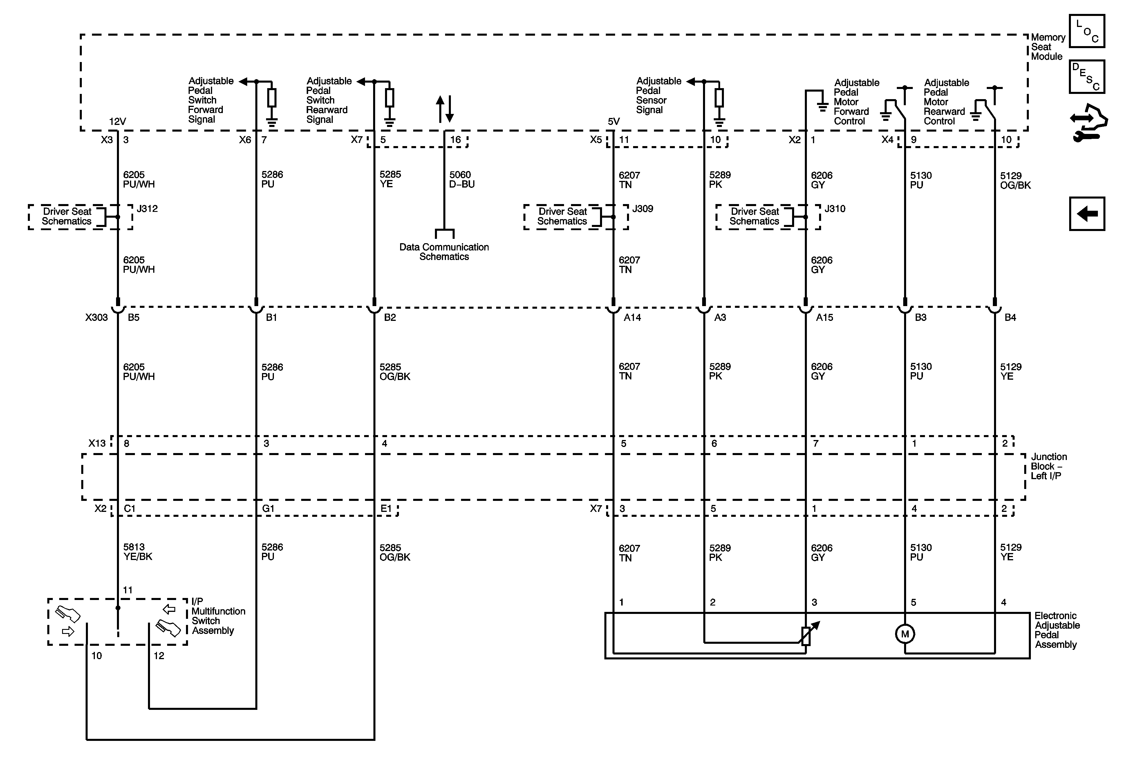
Adjustable Pedals Description and Operation (with Memory)
Control Module References
-AN3
Seat Adjuster Switches (AN3)
Motors and Position Sensors (AN3)
Motors and Position Sensors (AN3)
Low Speed Bus - 3 of 3