GM Service Manual Online
For 1990-2009 cars only

Object Number: 447411  Size: LF
Handling ESD Sensitive Parts Notice
Power Door Systems Components
Ground Distribution Schematics
Ground Distribution Schematics
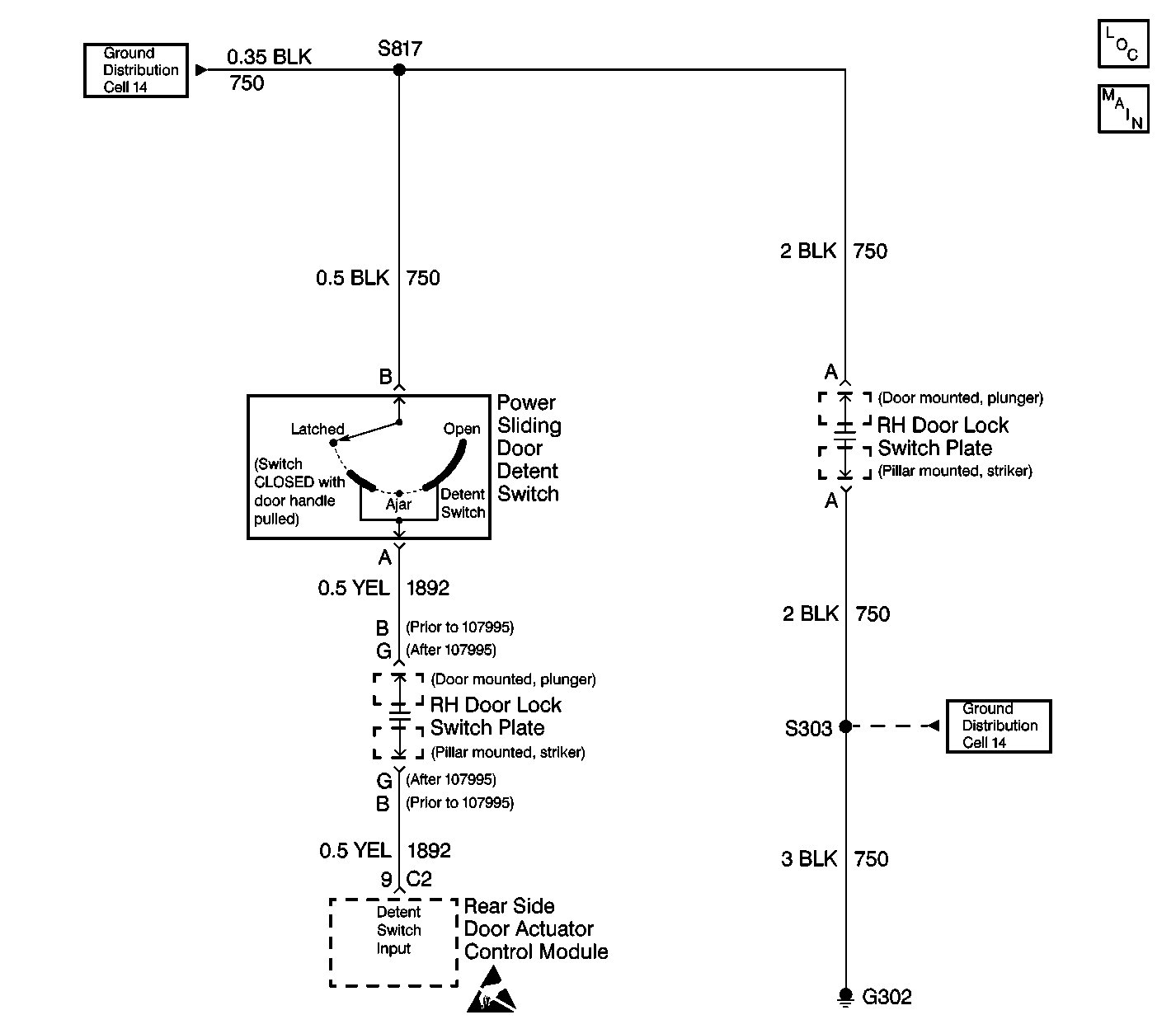
Sliding Door Schematics Regular Wheel Base

Circuit Description

The Power Sliding Door (PSD) contains an optical sensor that provides sliding door position information to the rear side door actuator control module. The optical sensor sends pulses to the rear side door actuator control module when the sliding door is moving. The rear side door actuator control module keeps track of these optical sensor pulses at all times, even when the sliding door is open or closed manually with the power sliding door on/off switch in the off position. The optical sensor pulses allow the rear side door actuator control module to calculate the position of the sliding door. Also, the optical sensor allows the rear side door actuator control module to resume PSD operation after operating the sliding door manually.

In addition to the optical sensor, the rear side door actuator control module uses the PSD detent switch to determine when the sliding door is open, ajar, or latched. The PSD detent switch is part of the sliding door latch assembly. The PSD detent switch sends ground signals to the rear side door actuator control module through CKT 1892 indicating when the sliding door is open, ajar, or latched (fully closed). The PSD detent switch receives ground through CKT 750. CKT 750 and CKT 1892 pass through the switch plate plungers and pads located on the B-pillar.

When the PSD is closing and the sliding door is about 30 cm (12 in.) from being closed, the rear side door actuator control module reduces power to the cable motor. This action slows down the movement of the sliding door. Once the switch plate plungers and pads make contact, CKT 750 and CKT 1892 are completed and the rear side door actuator control module is able to monitor the PSD detent switch input.

When the sliding door latch moves from the open to the secondary latch (ajar) position, the PSD detent switch no longer sends a ground signal to the rear side door actuator control module, thus opening CKT 1892. This action signals the rear side door actuator control module that the sliding door has passed from the open door to the secondary latch (ajar) position. Upon detecting the door ajar position, the rear side door actuator control module sends full power to the cable motor.

As the sliding door continues to close, the sliding door latch moves from the ajar to the primary latch position. The PSD detent switch sends and another ground signal to the rear side door actuator control module when the sliding door is between the secondary and primary latch position. This action signals the rear side door actuator control module that the sliding door has passed from ajar to door closed position. Then, the rear side door actuator control module disengages the clutch and de-energizes the cable motor.

Conditions for Setting the DTC

The PSD is unable to determine the exact location of the sliding door due to a problem with one of the following inputs:

    • The optical sensor input
    • The PSD detent switch input

Action Taken When the DTC Sets

    • The PSD is disabled.
    • Any PSD movement, if in process is stopped.
    • The rear side door actuator control module sets DTC 13 in memory.

Conditions for Clearing the DTC

    • The conditions for setting the DTC are no longer present.
    • The power sliding door is re-initialized.

Diagnostic Aids

    • Inspect for the following conditions:
       - Poor connector terminal contact at the rear side door actuator control module
       - Poor interface of switch plate plungers and striker
       - An open in CKT 1892
       - An open in CKT 750
       - Poor G302
       - A short to ground in CKT 1892
       - A faulty PSD detent switch
    • Prevent bright light from reaching the optical sensor when performing diagnostics with the rear quarter trim panel removed. Bright light may cause the rear side door actuator control module to lose track of the sliding door position.
    • An intermittent failure may be difficult to detect and to accurately diagnose. Faulty electrical connections or wiring causes most intermittent problems. When an intermittent condition is suspected, inspect the suspected circuits for the following conditions:
       - Poor mating of connector halves
       - Backed out terminals
       - Improperly formed or damaged terminals
       - Wire chafing
       - Poor wire-to-terminal connections
       - Dirty or corroded terminals
       - Damaged connector bodies
       - A broken wire inside the insulation
    • Use a J 35616 whenever a diagnostic procedure requests probing or inspecting a terminal. Using the J 35616 ensures that no damage to the terminal will occur. Using the J 35616 provides an estimate of whether the contact tension is sufficient.

Important: CKT 294 and CKT 1892 have been changed around in the door and pillar mounted Right door lock switch plate connectors to improve circuit operation. This was an on-going change through production. It is possible to have two different terminal configurations going into the door and pillar mounted Right door lock switch plate connectors. The Vehicle Identification Number (VIN) break for the last change was sequence WD107995. The schematics and thumbnails illustrate these changes to these circuits.

In order to avoid any confusion, perform the following:

  1. Remove the switch plates containing the plungers and pads so that the Right door lock switch plate connectors can be probed directly.
  2. Visually checking the circuits by their wire color and where they are on the connector (terminal cavity location) will allow the technician to probe at the correct point.
  3. Use new X-mas tree fasteners when reinstalling the door lock switch plate plunger assembly.

Test Description

The number(s) below refer to the step number(s) on the diagnostic table.

  1. This step performs the Diagnostic Mode 2: Input Test.

  2. This step determines if the malfunction is in the sliding door or in the vehicle.

  3. This step tests for an open in CKT 750 (door side).

  4. This step tests for an open in CKT 1892 (door side).

  5. This step determines if the following conditions exist:

  6. • CKT 1892 is shorted to ground (door side).
    • The door lock latch switch is faulty.
  7. This step tests for an open in CKT 750 (vehicle side).

  8. This step tests for a short to ground in CKT 1892 (vehicle side).

  9. This step tests for an open in CKT 1850 (vehicle side).

  10. This step determines if the malfunction is intermittent or if the rear side door actuator control module is faulty.

Step

Action

Value(s)

Yes

No

1

Was the Power Sliding Door (PSD) Diagnostic System Check performed?

--

Go to Step 2

Go to Power Sliding Door (PSD) Diagnostic System Check

2

  1. Disengage the child security lock.
  2. Close the sliding door.
  3. Enter the Diagnostic Mode 2: Input Test. Refer to Diagnostic Modes in Power Sliding Door (PSD) Diagnostic Information . During the Diagnostic Mode 2, the PSD alarm should sound under the following conditions:
  4. • The door handle is pulled when the sliding door is closed (latched).
    • The sliding door moves from the latched position to the open position and the switch plate plungers and the striker remain in contact.
    • The sliding door moves from the ajar position to the latched position.

Does the alarm operate as described?

--

Go to Step 17

Go to Step 3

3

  1. Remain in Diagnostic Mode 2. Open the sliding door.
  2. Disconnect the pillar mounted pad plate from the pillar mounted right door lock switch plate connector.
  3. Using a fused jumper, momentarily connect between the pillar mounted right door lock switch plate and the following connector terminals:
  4. • On models prior to VIN break sequence WD107995, connect at terminal A and terminal B.
    • On models after the VIN break sequence WD107995, connect at terminal A and terminal G.

Upon contact, does the PSD alarm toggle ON or OFF?

--

Go to Step 4

Go to Step 7

4

  1. Reconnect the pillar mounted pad plate on the pillar mounted right door lock switch plate connector and install into place.
  2. Disconnect the PSD detent switch electrical connector.
  3. Disconnect the door mounted plunger plate from the door mounted right door lock switch plate connector.
  4. Using a J 39200 DMM, measure the resistance between the PSD detent switch electrical harness connector terminal B and door mounted right door lock switch plate terminal A.

Does the resistance measure within the specified range?

2 ohms

Go to Step 5

Go to Step 10

5

    • On models prior to VIN break sequence WD107995, use the J 39200 DMM in order to measure the resistance between the PSD detent switch electrical harness connector terminal A and the door lock switch plate plunger terminal B.
        Is the resistance less than the specified value?
    • On models after the VIN break sequence WD107995, use the J 39200 DMM in order to measure the resistance between the PSD detent switch electrical harness connector terminal A and the door lock switch plate plunger terminal G.
        Is the resistance less than the specified value?

2 ohms

Go to Step 6

Go to Step 11

6

  1. Leave the PSD detent switch disconnected.
  2. Connect the door mounted plunger plate on the door mounted right door lock switch plate and install into place.
  3. Close the sliding door.
  4. Disconnect the rear side door actuator control module electrical connector C2.
  5. Using the J 39200 DMM, measure the resistance between the rear side door actuator control module harness connector C2 terminal 9 and ground.

Does the resistance measure within the specified range?

Infinite

Go to Step 12

Go to Step 13

7

Connect a test lamp between B+ and the switch plate connector terminal A.

Does the test lamp light?

--

Go to Step 8

Go to Step 14

8

  1. Disconnect the rear side actuator control module electrical connector C2.
  2. Using the J 39200 DMM, measure the resistance between the rear side door actuator control module harness connector C2 terminal 9 and ground.

Does the resistance equal the specified value?

Infinite

Go to Step 9

Go to Step 15

9

    • On vehicles prior to VIN break sequence WD107995, use a J 39200 DMM, in order to measure the resistance between the rear side door actuator control module harness connector C2 terminal 9 and the switch plate striker terminal B.
    • On vehicles prior to VIN break sequence WD107995, use a J 39200 DMM, in order to measure the resistance between the rear side door actuator control module harness connector C2 terminal 9 and the switch plate striker terminal G.

Is the resistance less than the specified value?

10 ohms

Go to Step 17

Go to Step 16

10

Repair the poor connection or the open in CKT 750 between the PSD detent switch and the door mounted right door lock switch plate. Refer to Wiring Repairs in Wiring.

Is the repair complete?

--

Go to Step 20

--

11

Repair the poor connection or the open in CKT 1892 between the PSD detent switch and the door mounted right door lock switch plate. Refer to Wiring Repairs in Wiring.

Is the repair complete?

--

Go to Step 20

--

12

Replace the PSD detent switch. Refer to Power Sliding Door Rear Latch Detent Switch Replacement .

Is the repair complete?

--

Go to Step 20

--

13

Repair the short to ground in CKT 1892 between the PSD detent switch and the door mounted right door lock switch plate. Refer to Wiring Repairs in Wiring.

Is the repair complete?

--

Go to Step 20

--

14

Repair the poor connection or the open in CKT 750 between the PSD detent switch, right door lock switch plate and ground, and the rear side door actuator control module. Refer to Wiring Repairs in Wiring.

Is the repair complete?

--

Go to Step 20

--

15

Repair the short to ground in CKT 1892 between the PSD detent switch and the rear side door actuator control module. Refer to Wiring Repairs in Wiring.

Is the repair complete?

--

Go to Step 20

--

16

Repair the poor connection or the open in CKT 1892 between the PSD detent switch and the rear side door actuator control module. Refer to Wiring Repairs in Wiring.

Is the repair complete?

--

Go to Step 20

--

17

  1. Turn the ignition switch to the LOCK position.
  2. Reconnect any connectors or components that were removed.
  3. Perform the PSD re-initialization procedure. Refer to Power Sliding Door (PSD) Re-Initialization .
  4. Enter the Diagnostic Mode 1: Reading DTCs. Refer to Diagnostic Modes in Power Sliding Door (PSD) Diagnostic Information .

Does the DTC 13 reset?

--

Go to Step 18

Go to Step 19

18

Replace the rear side door actuator control module. Refer to Rear Side Door Actuator Control Module Replacement .

Is the repair complete?

--

Go to Step 20

--

19

A malfunction is not present at this time. Refer to Diagnostic Aids for additional information.

Is the action complete?

--

Go to Step 20

--

20

  1. Turn the ignition switch to the LOCK position.
  2. Reconnect any connectors or components that were removed.
  3. Perform the PSD re-initialization procedure. Refer to Power Sliding Door (PSD) Re-Initialization .

Does the PSD operate normally?

--

System OK

Go to Power Sliding Door (PSD) Diagnostic System Check