GM Service Manual Online
For 1990-2009 cars only
Makes
🢒
HUMMER
🢒
2006
🢒
H3
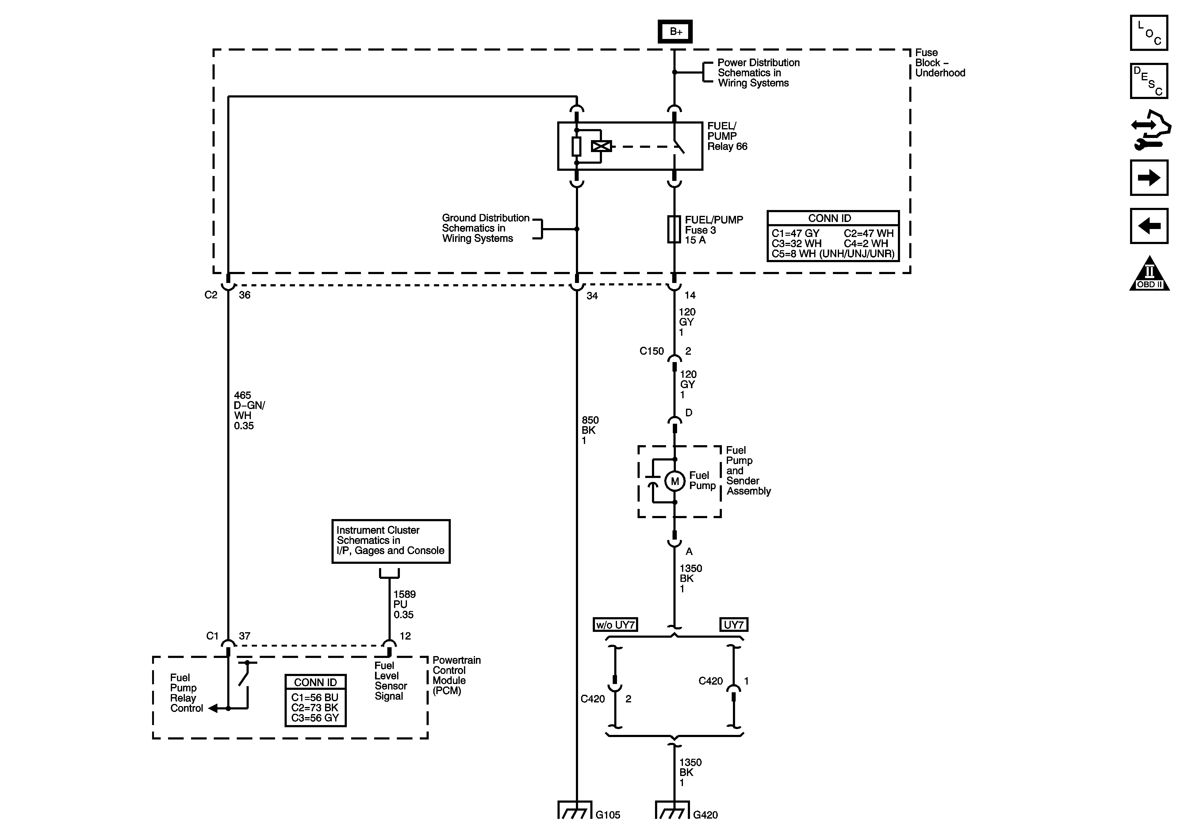
🢒 Fuel Controls
Fuel Controls
Fuel Controls
Master Electrical Component List
Powertrain Control Module Description
Control Module References
Fuel Injection Controls
Ignition Controls - Ignition System
Engine Controls Schematic Icons
B+ Bus - Underhood Fuse Block - 2 of 2
G105
Gages
G105
G420