GM Service Manual Online
For 1990-2009 cars only
Makes
🢒
Oldsmobile
🢒
1999
🢒
Intrigue
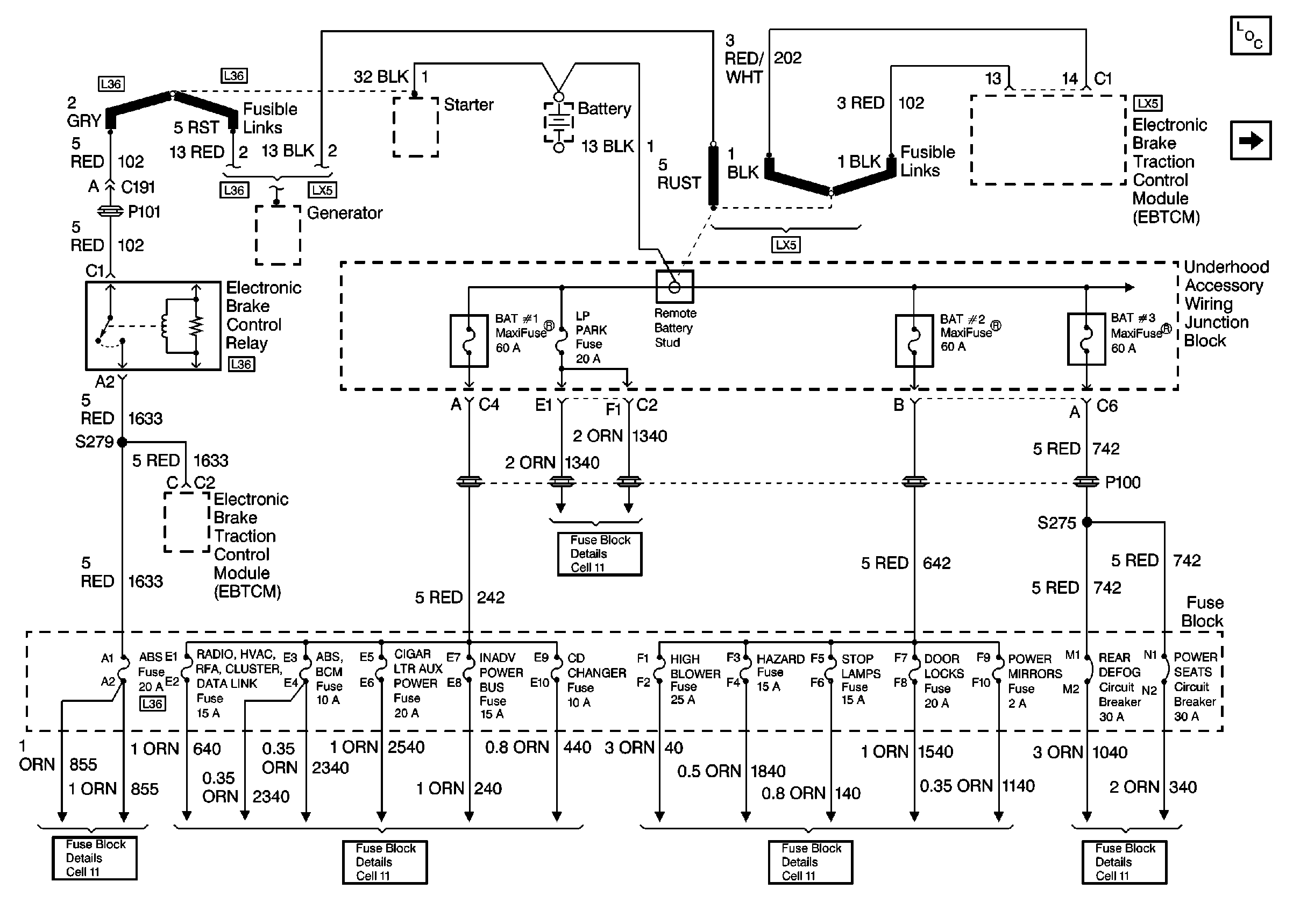
🢒 Cell 10: Battery, Generator, EBTCM, and Underhood Accessory Wiring Junction Block
Cell 10: Battery, Generator, EBTCM, and Underhood Accessory Wiring Junction Block
Cell 10: Battery, Generator, EBTCM, and Underhood Accessory Wiring Junction Block
Power and Grounding Components
Cell 10: IGN 2 MaxiFuse®, and Ignition Switch
Cell 10: ABS, CRANK SIGNAL BCM CLUSTER, HEATED MIRROR, and IGN 0:CLUSTER PCM & BCM Fuses
Cell 10: ABS BCM, CD CHANGER, CIGAR LTR AUX POWER, INADV POWER BUS,and RADIO HVAC RFA CLUSTER DATA LINK Fuses
Cell 10: DOOR LOCKS, HAZARD, HIGH BLOWER, POWER MIRRORS, and STOP LAMPS Fuses
Cell 10: POWER SEATS, PWR WINDOWS PWR SUNROOF, and REAR DEFOG CIRcUIT Breakers
Cell 10: HDLP L, HDLP R, and LP PARK Fuses