GM Service Manual Online
For 1990-2009 cars only
Makes
🢒
Pontiac
🢒
2006
🢒
G6
🢒
Body
🢒
Wiring Systems
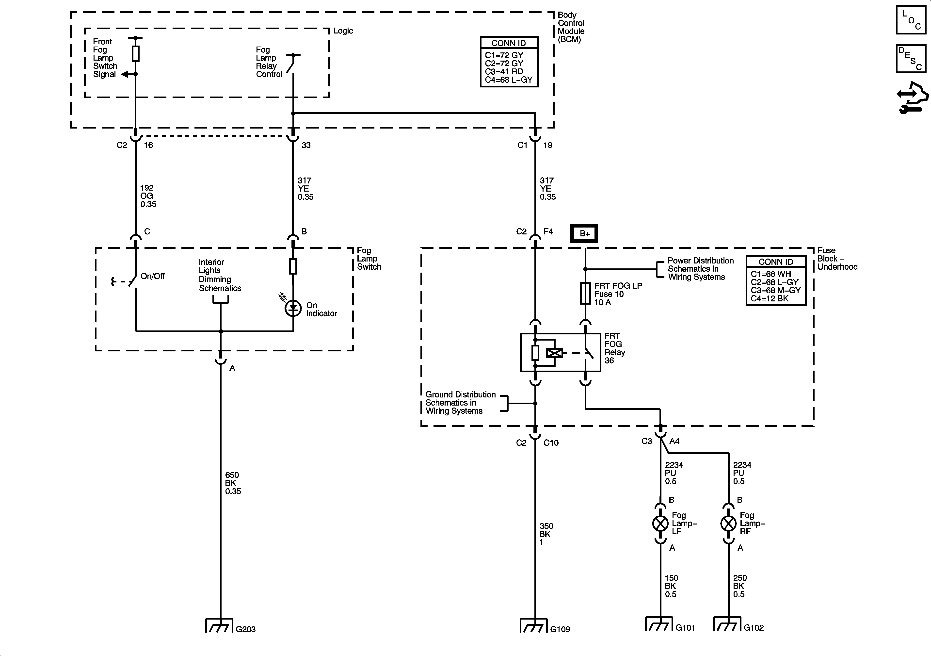
🢒 Fog Lights Schematics
Master Electrical Component List
Exterior Lighting Systems Description and Operation
Control Module References
Dimmer Switch Inputs
Dimmer Switch Inputs
Underhood Fuse Block - B+
G203
G109
G101 and G102
G101 and G102