GM Service Manual Online
For 1990-2009 cars only
Makes
🢒
Saturn
🢒
2008
🢒
Astra
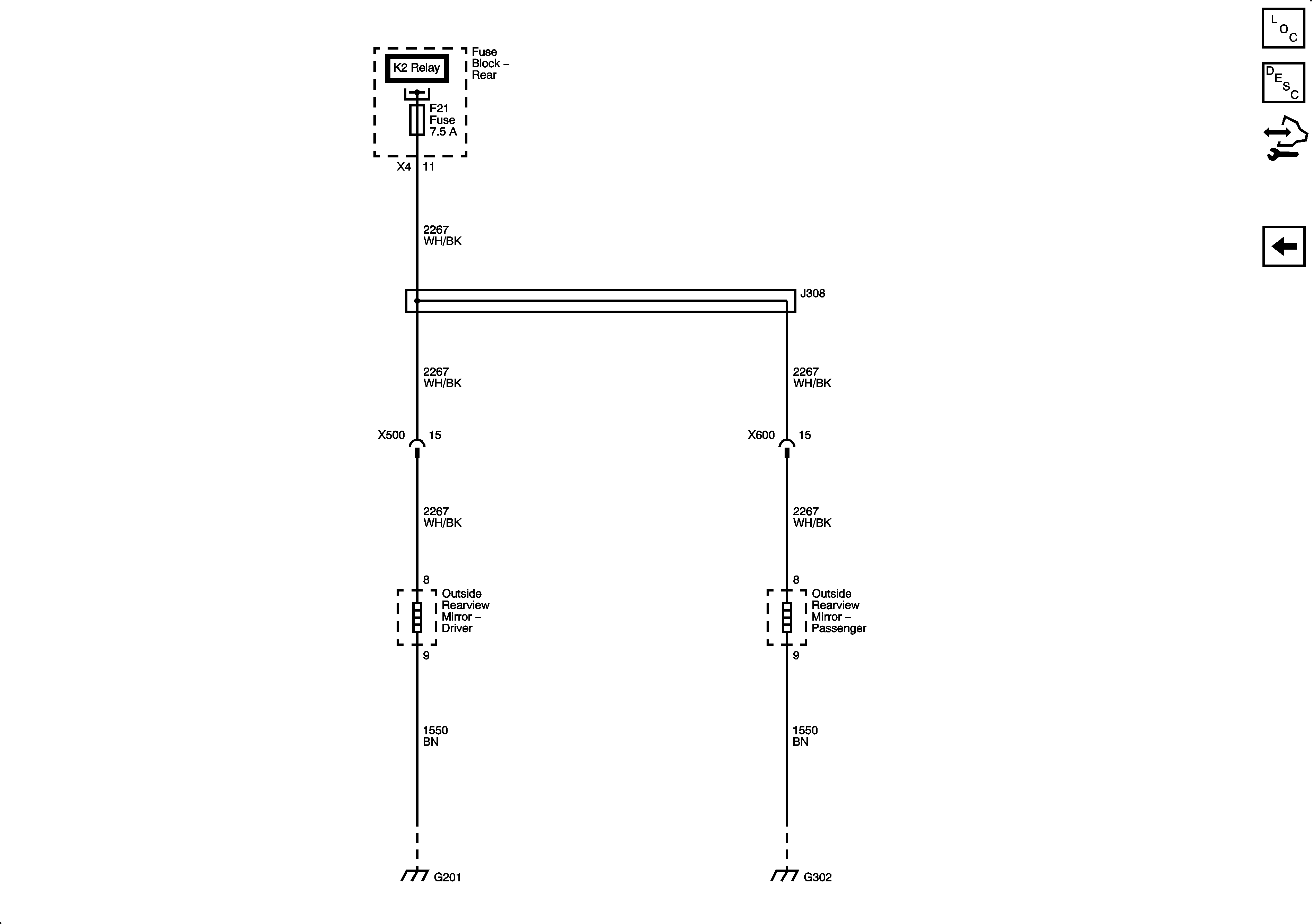
🢒 Heated Mirrors
Heated Mirrors
Heated Mirrors
Master Electrical Component List
Outside Mirror Description and Operation
Control Module References
Power Mirrors
Fuse Block - Rear F11 and F21 Fuses
G201 and G202
G302 and G303