GM Service Manual Online
For 1990-2009 cars only
Makes
🢒
Saturn
🢒
2007
🢒
SKY
🢒 Horn Schematics
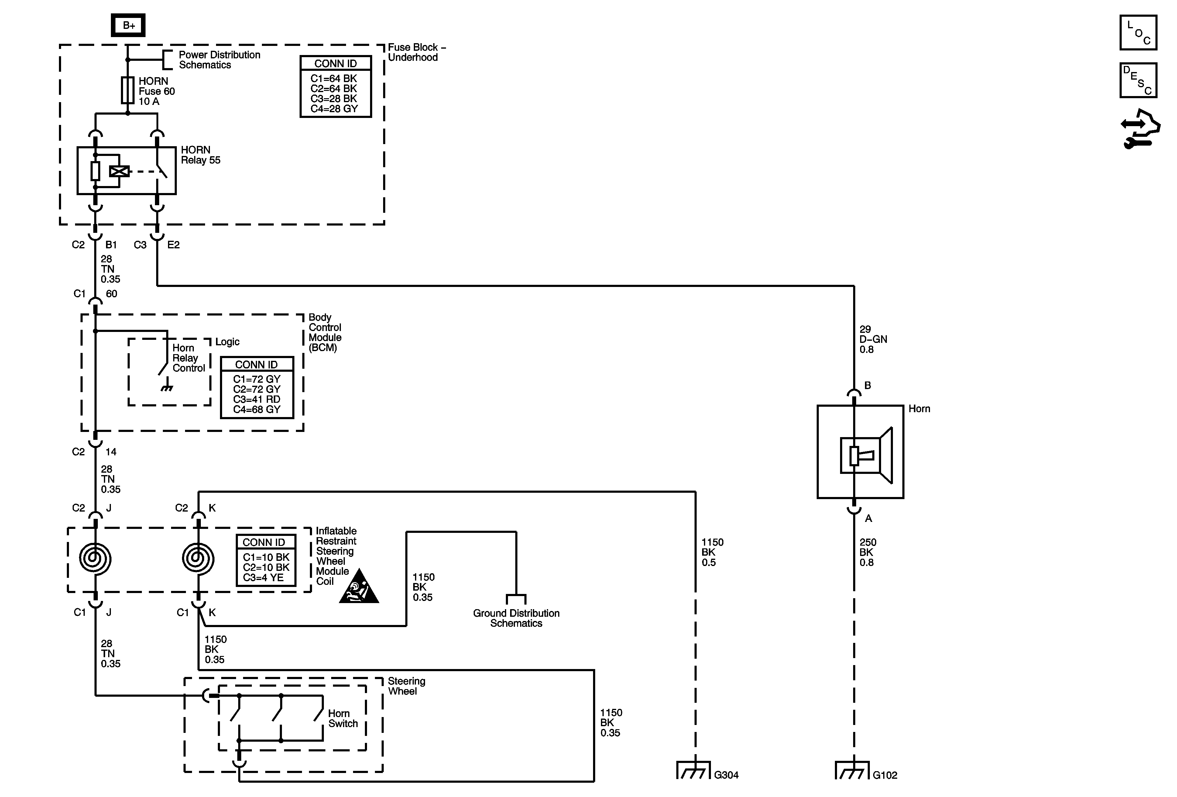
Horn Schematics
Master Electrical Component List
Horns System Description and Operation
Control Module References
B+ Bus - 2 of 2
G103, G104, G105, G106 and G304
G103, G104, G105, G106 and G304
G101 and G102
Horn Schematic Icons