GM Service Manual Online
For 1990-2009 cars only
Makes
🢒
Buick
🢒
2001
🢒
Park Avenue
🢒 Memory Power Lumbar
Memory Power Lumbar
Memory Power Lumbar
Master Electrical Component List
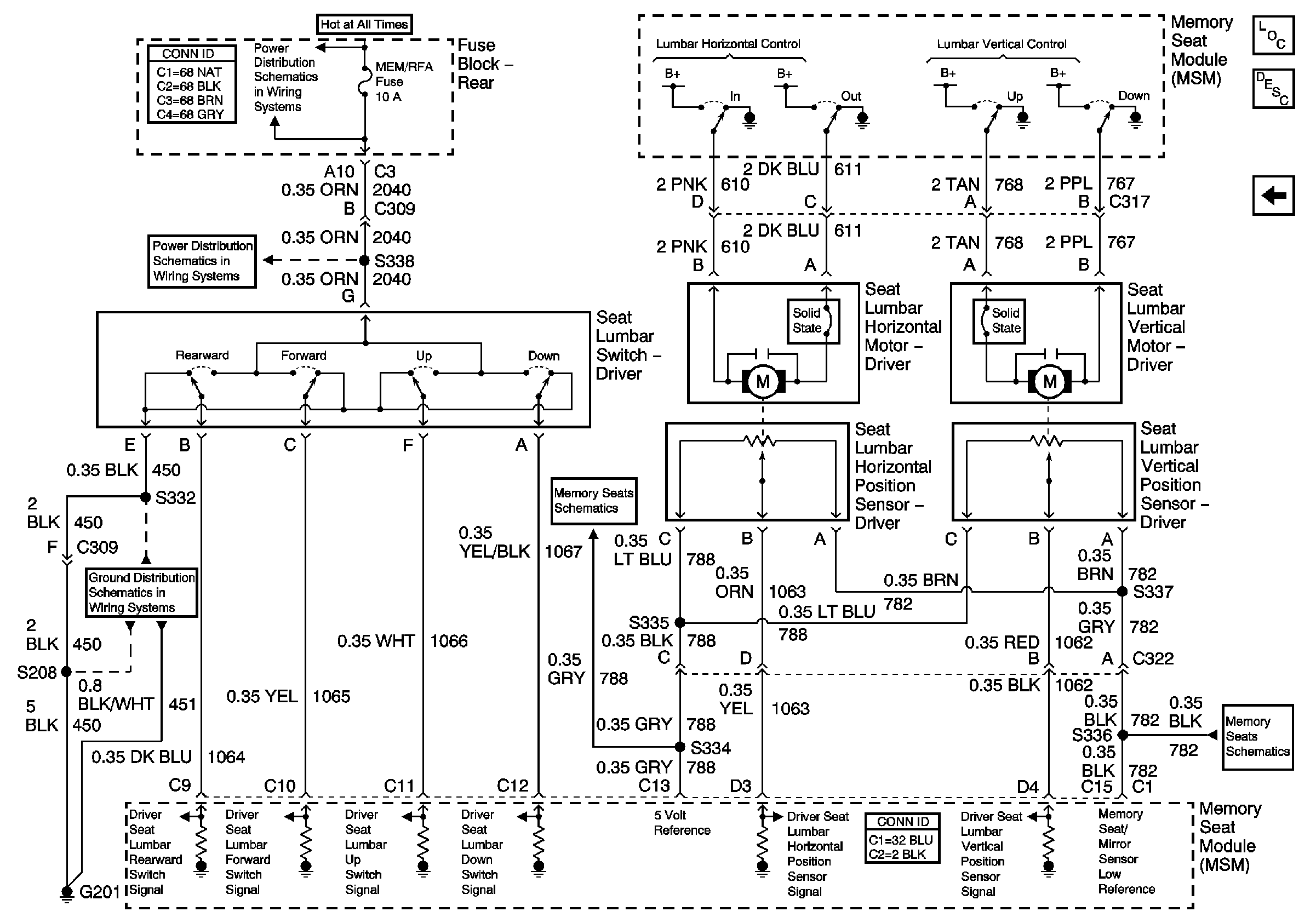
Lumbar Support Description and Operation w/o A45
Power Lumbar
Underhood Fuse Block- BAT 2 Fuse/ Rear Fuse Block- PWR SEAT and MEM/RFA FUSEs
Underhood Fuse Block- BAT 2 Fuse/ Rear Fuse Block- PWR SEAT and MEM/RFA FUSEs
LH Seat Motors
LH Seat Motors
G201 (1 of 2)