GM Service Manual Online
For 1990-2009 cars only
Makes
🢒
Chevrolet
🢒
2007
🢒
Silverado Classic - 2WD
🢒
Engine
🢒
Engine Controls and Fuel - 6.6L (LBZ and LLY)
🢒 Instrument Cluster Schematics
Figure
1:
Power, Ground, Serial Data, and MIL Indicator
Master Electrical Component List
Instrument Cluster Description and Operation
Control Module References
Indicators, Water in Fuel Sensor, Engine Oil Level Switch, and Washer Fluid Level Sensor
B+ Bus Bar
Power, Ground, DLC and Splice Pack SP205
G203 - 1 of 2
IPC/DIC, LH HID, RH HID, SEO B1, and TBC BATT Fuses
Ignition Switch - ACC/RUN and RUN/START BUS BARS and IGN B Fuse
IGN E and AIRBAG Fuses
B/U LP, BTSI, O2A, O2B, TBC IGN 1, and TRL B/U Fuses
Figure
2:
Indicators, Water in Fuel Sensor, Engine Oil Level Switch, and Washer Fluid Level Sensor
Master Electrical Component List
Instrument Cluster Description and Operation
Control Module References
Gages, Vehicle Speed Sensor, Engine Oil Pressure, and Fuel Level Sensors
Power, Ground, Serial Data, and MIL Indicator
Power, Ground, DLC and Splice Pack SP205
Supplemental Brake Assist
G102, G103, and G108 - Diesel
G102, G103, and G108 - Diesel
G103 and G106 - Gas
G100 and G102
Turn Signals - Chevrolet
Turn Signals - GMC
Figure
3:
Gages, Vehicle Speed Signal, Engine Oil Pressure, and Fuel Level Sensors
Master Electrical Component List
Instrument Cluster Description and Operation
Control Module References
Indicators, Water in Fuel Sensor, Engine Oil Level Switch, and Washer Fluid Level Sensor
Power, Ground, DLC and Splice Pack SP205
Starting Controls - 1 of 2
Fuel Controls - EVAP and Device Controls
Fuel Controls - EVAP Controls and FTP Sensor
Fuel Controls - EVAP Controls
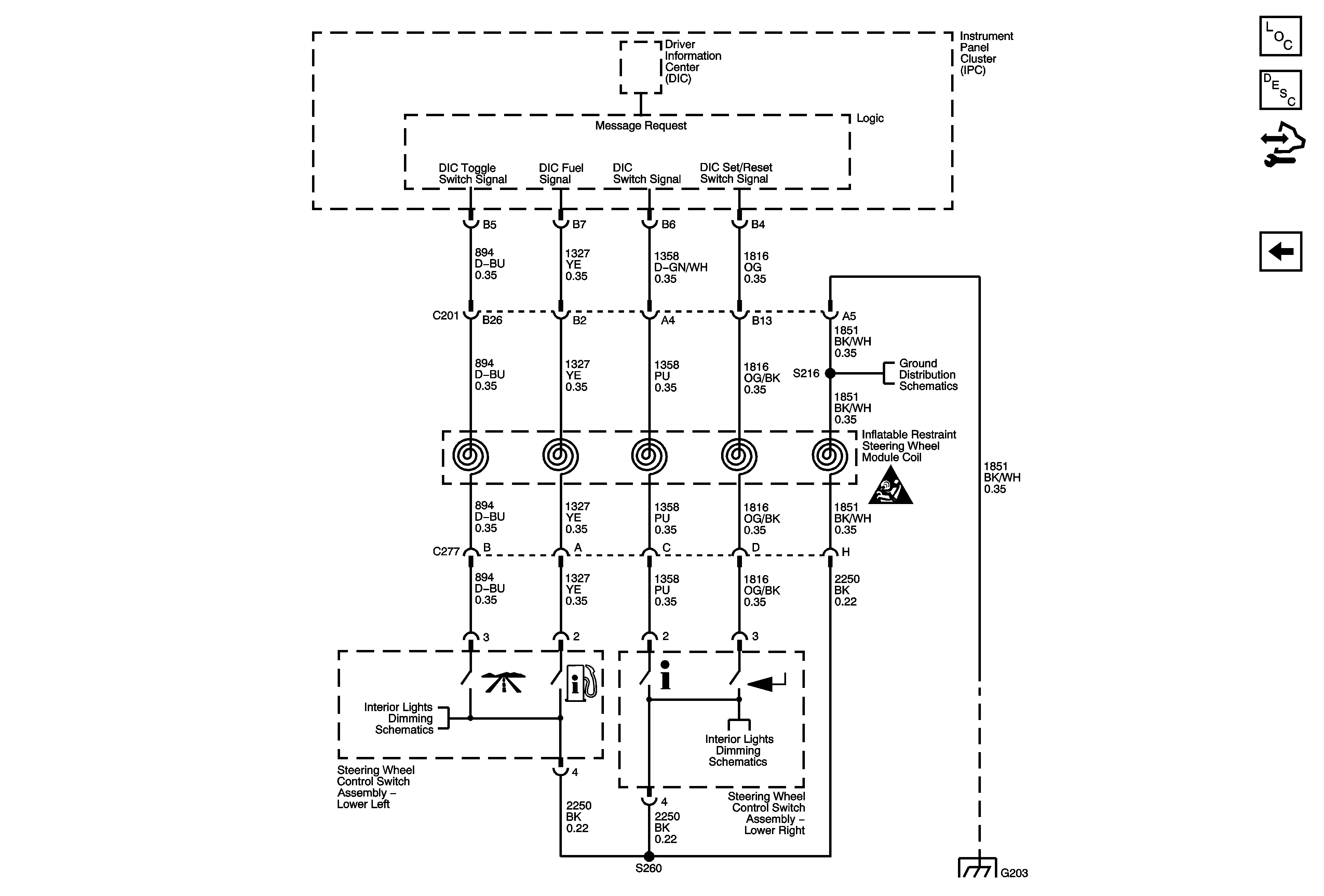
Figure
4:
Driver Information Controls
Master Electrical Component List
Instrument Cluster Description and Operation
Control Module References
Gages, Vehicle Speed Signal, Engine Oil Pressure, and Fuel Level Sensors
I/P Lamps Dimming Control Supply - 1 of 3
I/P Lamps Dimming Control Supply - 1 of 3
G203 - 1 of 2
G203 - 2 of 2