GM Service Manual Online
For 1990-2009 cars only
Makes
🢒
Chevrolet
🢒
2007
🢒
Silverado - 4WD
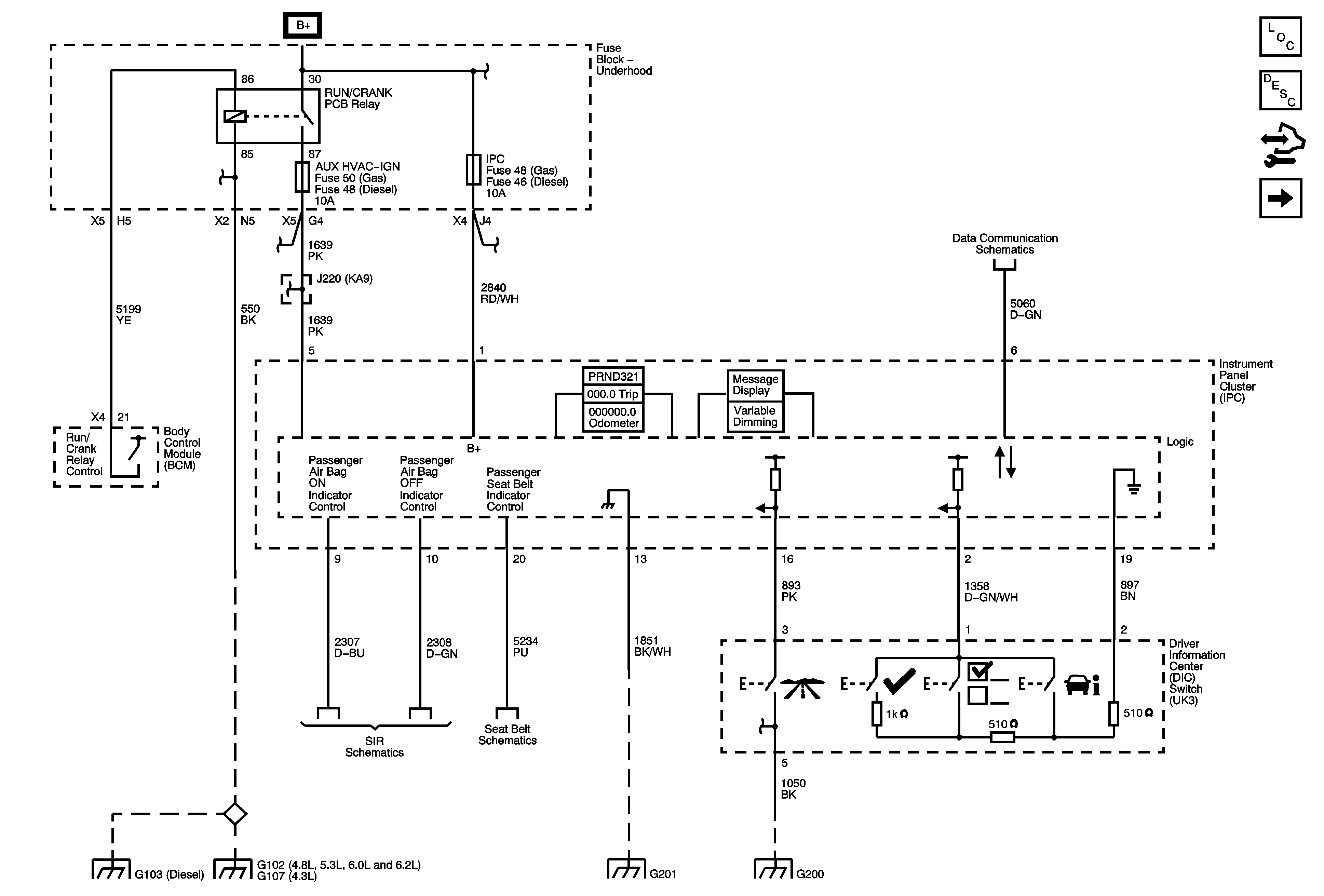
🢒 Power, Ground and Driver Information Switch
Power, Ground and Driver Information Switch
Power, Ground and Driver Information Switch
Master Electrical Component List
Instrument Cluster Description and Operation
Control Module References
Indicators
RUN/CRANK BUS - AUX HVAC- IGN and HVAC-IGN Fuses
ECM-BATT, HDLP WASH, HVAC BATT, IPC, LTR, S/ROOF and TCM-BATT Fuses
Low Speed Bus - 1 of 3
Passenger Presence System 1 of 2
Seat Belt Schematics
G106 (4.3L) and G103
G102, G107 (4.3L), G104, G108
G201 1 of 2
G200 1 of 2