GM Service Manual Online
For 1990-2009 cars only
Makes
🢒
Isuzu
🢒
2008
🢒
Isuzu MD F-Series
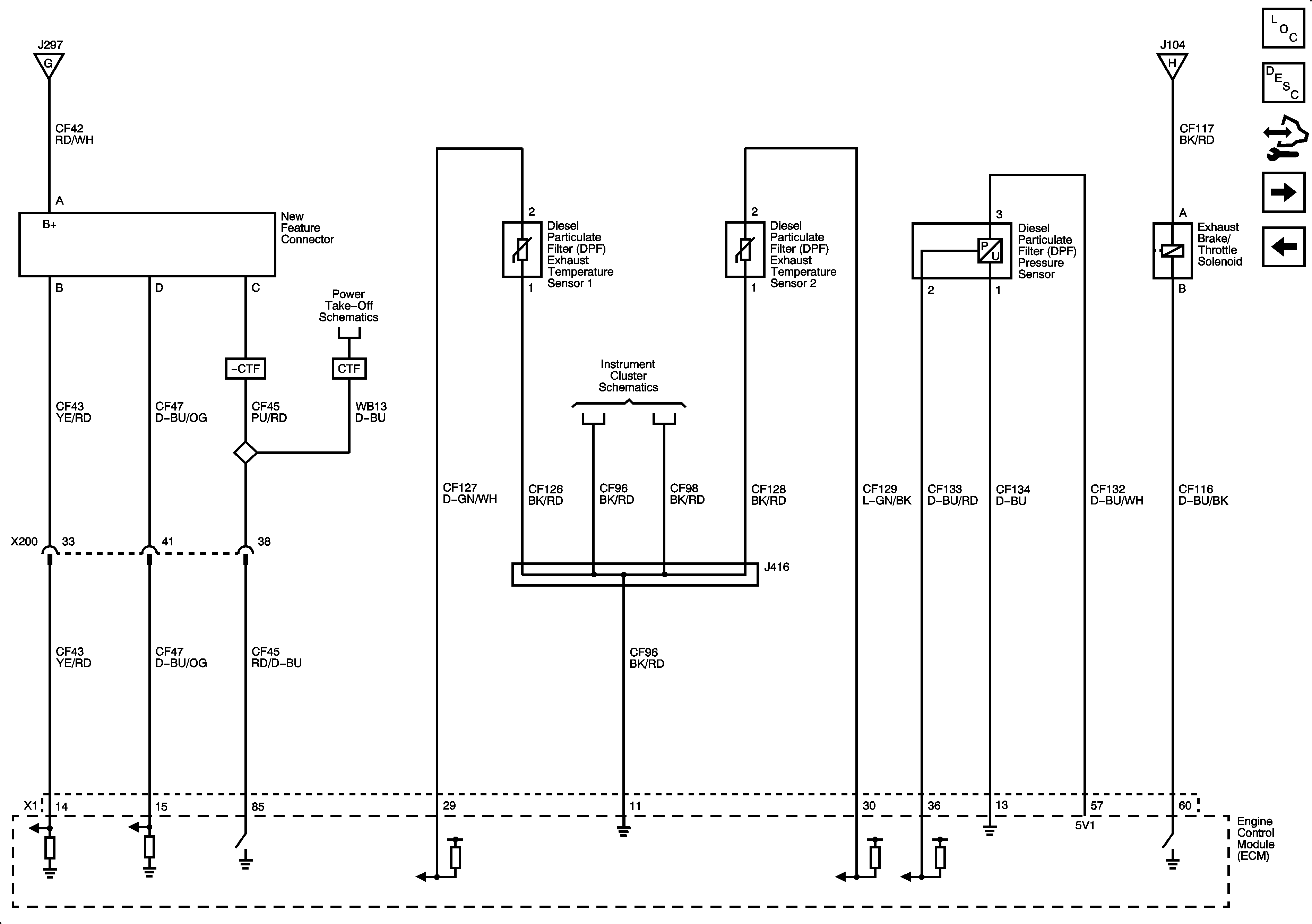
🢒 DPF Sensor, Exhaust Temperature Sensors, Exhaust Brake/Throttle Solenoid
DPF Sensor, Exhaust Temperature Sensors, Exhaust Brake/Throttle Solenoid
DPF Sensor, Exhaust Temperature Sensors, Exhaust Brake/Throttle Solenoid
Master Electrical Component List
Fuel System Description
Control Module References
Fuel Controls Fuel Injectors
Fuel Controls - Sunction Control Valve, Water In Fuel/Fuel Temperature Sensors
Module Power, Ground, Serial Data, and MIL
Connector X104, Engine Control Module (ECM) PTO Relay, Turn Signal Multifunction and PTO Switches
Gages
Module Power, Ground, Serial Data, and MIL