GM Service Manual Online
For 1990-2009 cars only
Figure 1:

Power, Ground, and DLC


Object Number: 1657613  Size: FS
Master Electrical Component List
Body Control System Description and Operation
Control Module References
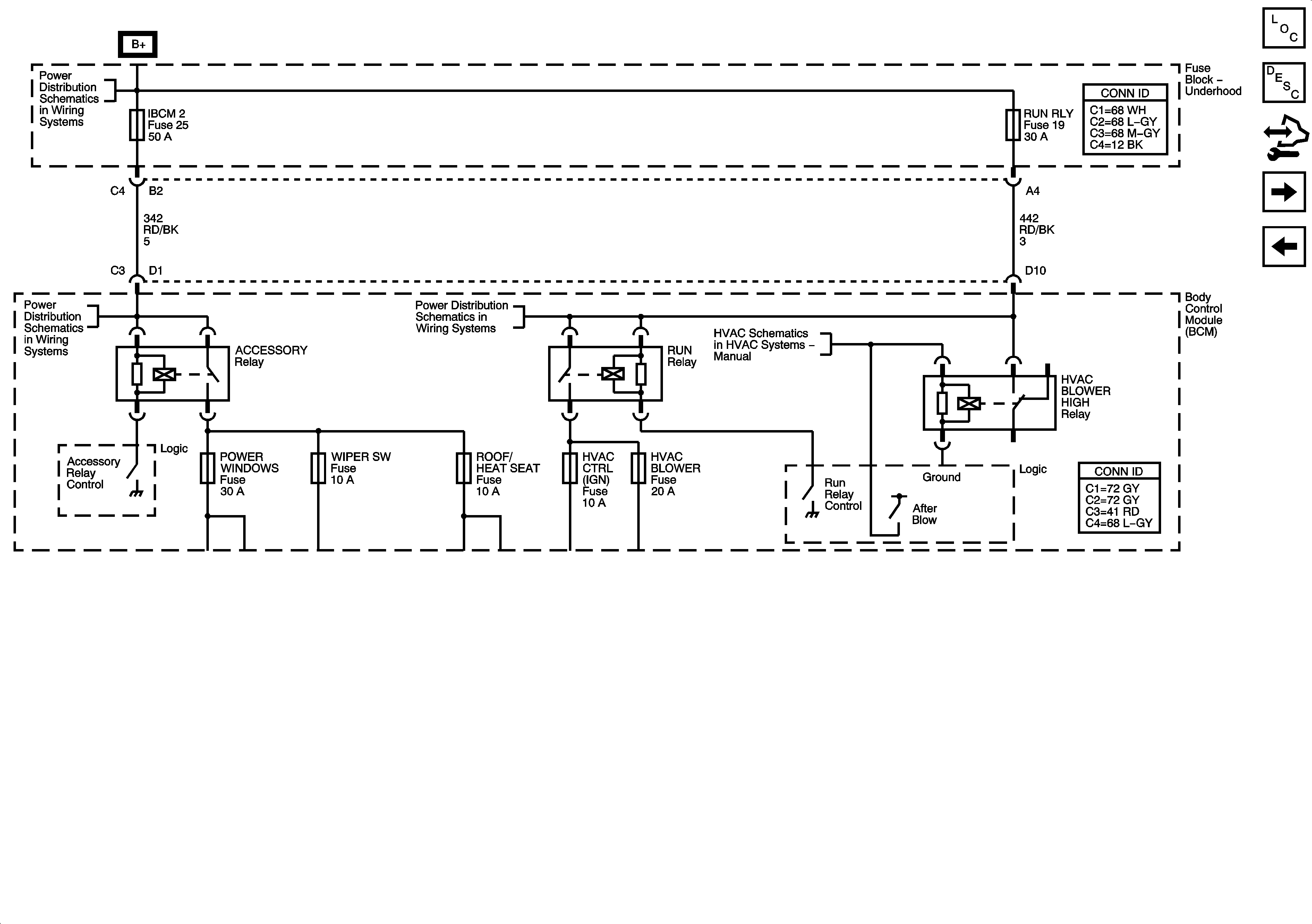
ACCESSORY, HVAC BLOWER HIGH and RUN Relays
Underhood Fuse Block IBCM 1, Body Control Module (BCM), AIRBAG (BATT), CLUSTER/THEFT, HVAC CTRL (BATT), IGN SENSOR and RADIO Fuses
Underhood Fuse Block IBCM 1, Body Control Module (BCM), AIRBAG (BATT), CLUSTER/THEFT, HVAC CTRL (BATT), IGN SENSOR and RADIO Fuses
Body Control Module (BCM) INTERIOR LIGHTS, ONSTAR, PEDAL and POWER MIRRORS Fuses
Underhood Fuse Block IBCM 2, Body Control Module (BCM) ACCESSORY Relay, DOOR LOCK, POWER WINDOWS, ROOF/HEAT SEAT and WPR SW Fuses
Power, Ground, Serial Data, High Speed GMLAN
Low Speed Serial Data
Underhood Fuse Block IBCM 1, Body Control Module (BCM), AIRBAG (BATT), CLUSTER/THEFT, HVAC CTRL (BATT), IGN SENSOR and RADIO Fuses
Keyless Entry Schematics
G201
G203
G304 and G305
Figure 2:

ACCESSORY, HVAC BLOWER HIGH and RUN Relays


Object Number: 1657614  Size: FS
Master Electrical Component List
Body Control System Description and Operation
Control Module References
Controlled/Monitored Subsystem References - 1 of 3
Power, Ground, and DLC
Underhood Fuse Block IBCM 2, Body Control Module (BCM) ACCESSORY Relay, DOOR LOCK, POWER WINDOWS, ROOF/HEAT SEAT and WPR SW Fuses
Underhood Fuse Block IBCM 2, Body Control Module (BCM) ACCESSORY Relay, DOOR LOCK, POWER WINDOWS, ROOF/HEAT SEAT and WPR SW Fuses
Underhood Fuse Block RBEC 2, RUN RLY, Body Control Module (BCM), HVAC BLOWER HIGH Relay, RUN Relay, HVAC BLOWER, HVAC CTRL (IGN) Rear Fuse Block FUEL Relay, PARK LP Relay, TRUNK Relay, DRV ST, EMISSIO
Blower Motor Controls, Ground and Power
Figure 3:

Controlled/Monitored Subsystem References (1 of 3)


Object Number: 1657615  Size: FS
Master Electrical Component List
Body Control System Description and Operation
Control Module References
Controlled/Monitored Subsystem References - 2 of 3
ACCESSORY, HVAC BLOWER HIGH and RUN Relays
Body Rear End Schematics
Vehicle Theft Deterrent (VTD) System
Content Theft Deterrent (CTD) System
Keyless Entry Schematics
Door Lock Switches
Door Lock Actuators
Door Ajar Indicators
Figure 4:

Controlled/Monitored Subsystem References (2 of 3)


Object Number: 1657617  Size: FS
Master Electrical Component List
Body Control System Description and Operation
Control Module References
Controlled/Monitored Subsystem References - 1 of 3
Headlights/Daytime Running Lights (DRL) Schematics
Fog Light Schematics
License Lamps and Backup Lamps
Turn Signals and Stop Lamps
Ambient Light Sensor, Brake Pedal Position Sensor, Hazard Switch and Turn Signal/Multifunction Switch
Park Lamps
G302
Dimmer Switch Inputs
Figure 5:

Controlled/Monitored Subsystem References (3 of 3)


Object Number: 1657618  Size: FS
Master Electrical Component List
Body Control System Description and Operation
Control Module References
Controlled/Monitored Subsystem References - 2 of 3
DLC, Ground, MIL and Power
DLC, Ground, MIL and Power
DLC, Ground, MIL and Power
Tap Up/Tap Down Switch (LX9)
Tap Up/Tap Down Switch
Automatic Transmission Shift Lock Control Schematics
Coolant Indicator
Ambient Air Temperature Sensor and Compressor Controls
Air Temperature and Mode Controls
Sensors
Brake Warning System Schematics
Switches, DLC and Indicator
Adjustable Pedals Schematics
Defogger Schematics
Horns Schematics