GM Service Manual Online
For 1990-2009 cars only
Makes
🢒
Saturn
🢒
2008
🢒
Astra
🢒 Door Ajar Switches
Door Ajar Switches
Door Ajar Switches
Master Electrical Component List
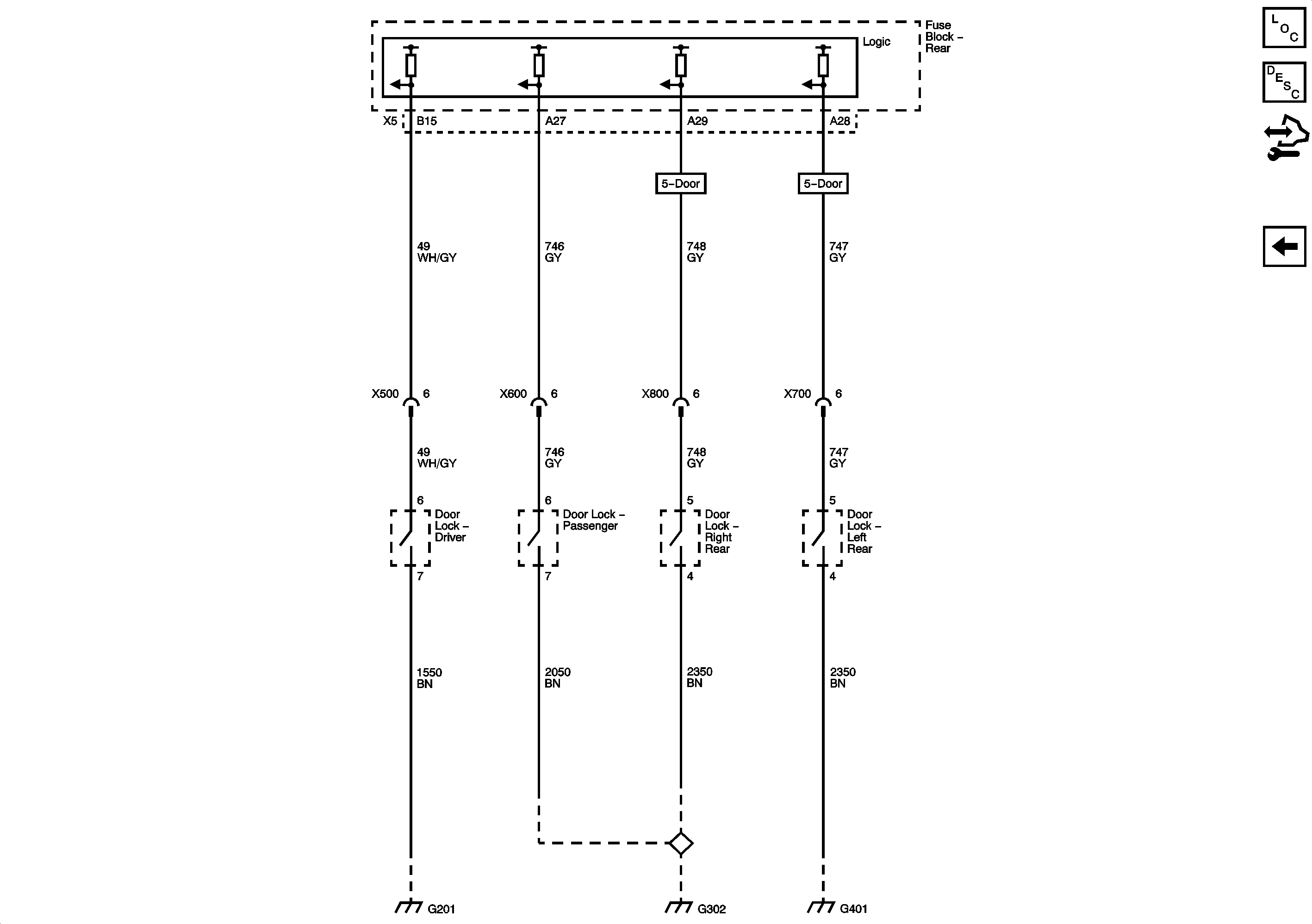
Power Door Locks Description and Operation
Control Module References
Door Locks
G201 and G202
G302 and G303
G401