GM Service Manual Online
For 1990-2009 cars only
Figure 1:

Left Park Lamps


Object Number: 1860749  Size: FS
Master Electrical Component List
Exterior Lighting Systems Description and Operation
Control Module References
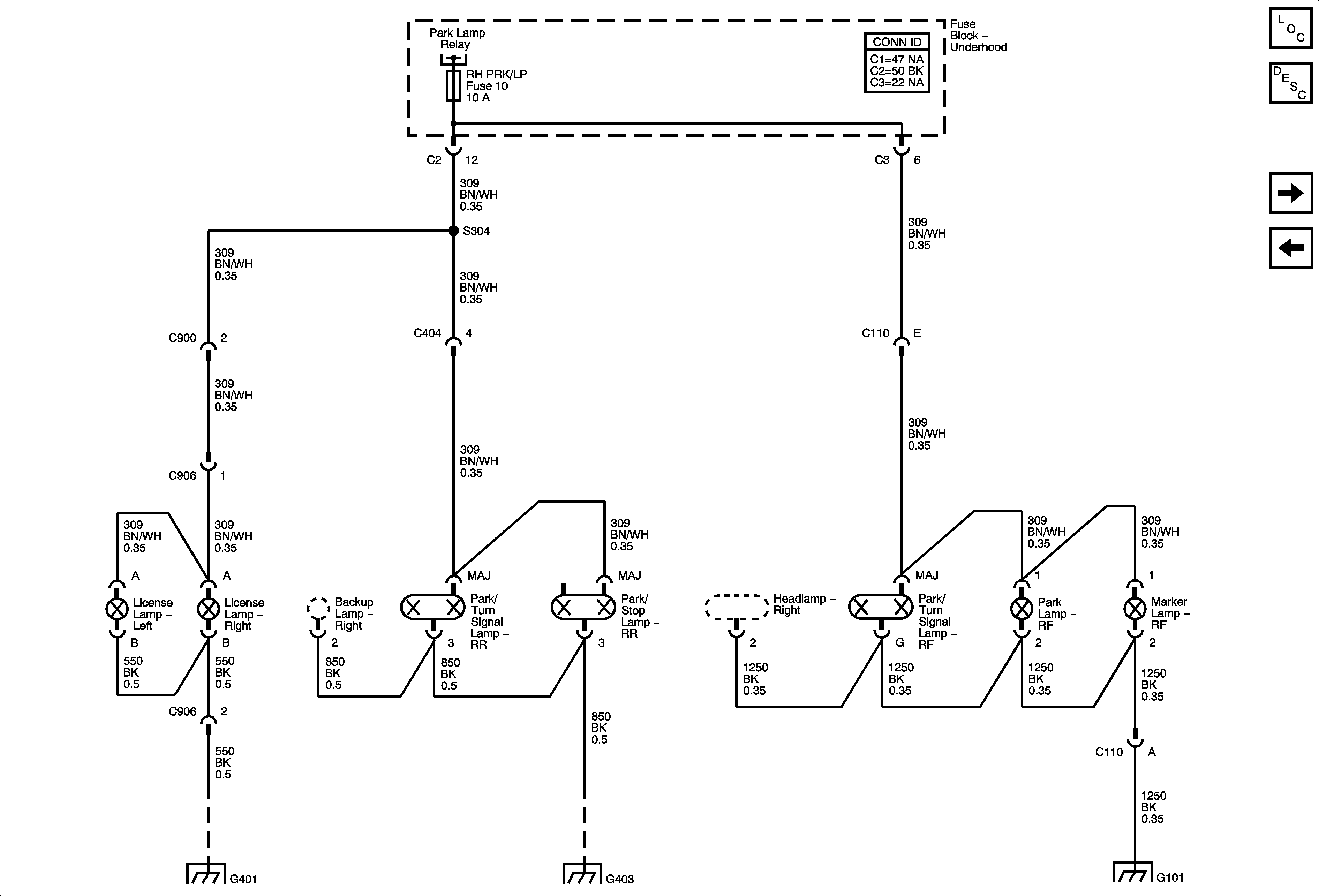
Licence Lamps and Right Park Lamps Schematics
B+ BUS 2 of 2
B+ BUS 2 of 2
G201
G101
G401
Figure 2:

License Lamps, Right Park Lamps


Object Number: 1860757  Size: FS
Master Electrical Component List
Exterior Lighting Systems Description and Operation
Turn Signal Lamps Schematics
Left Park Lamps Schematics
G401
G403
G101
Figure 3:

Turn Signal Lamps


Object Number: 1860758  Size: FS
Master Electrical Component List
Exterior Lighting Systems Description and Operation
Control Module References
Stop Lamps Schematics
Licence Lamps and Right Park Lamps Schematics
B+ BUS 1 of 2
G101
G201
G401
G403
Figure 4:

Stop Lamps


Object Number: 1860761  Size: FS
Master Electrical Component List
Exterior Lighting Systems Description and Operation
Control Module References
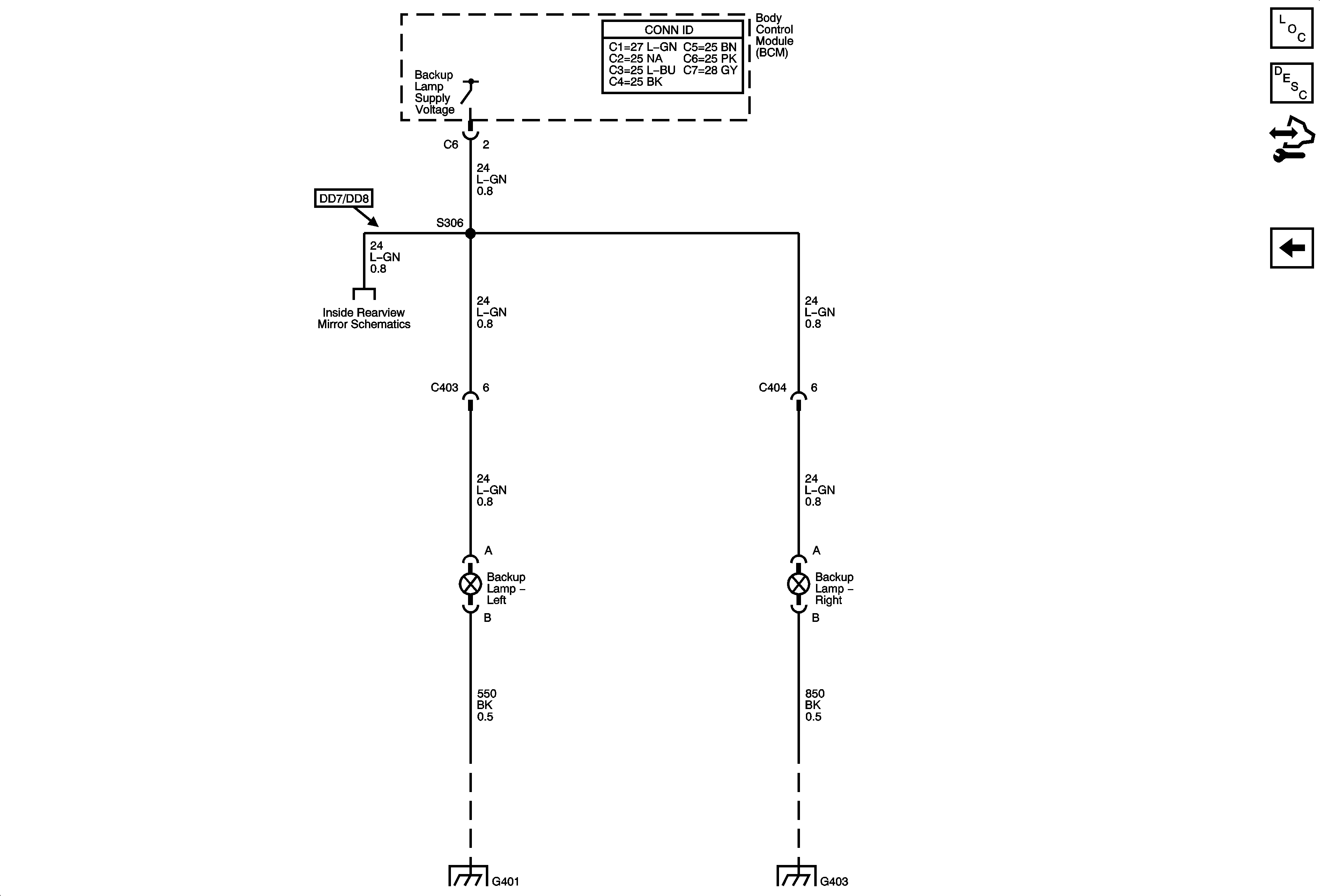
Backup Lamps Schematics
Turn Signal Lamps Schematics
BATT MAIN 1, CAN VENT, CLSTR, HVAC BLOWER, INFO, INT LTS, ONSTAR, REAR DEFOG, AND RVC Fuses
BATT MAIN 1, CAN VENT, CLSTR, HVAC BLOWER, INFO, INT LTS, ONSTAR, REAR DEFOG, AND RVC Fuses
B+ BUS 2 of 2
G403
G401
G101
Figure 5:

Backup Lamps


Object Number: 1860763  Size: FS
Master Electrical Component List
Exterior Lighting Systems Description and Operation
Control Module References
Stop Lamps Schematics
Inside Rearview Mirror
G401
G403
Figure 6:

Trailer Tow Connector


Object Number: 1860764  Size: FS
Master Electrical Component List
Exterior Lighting Systems Description and Operation
Control Module References
B+ BUS 1 of 2
G401