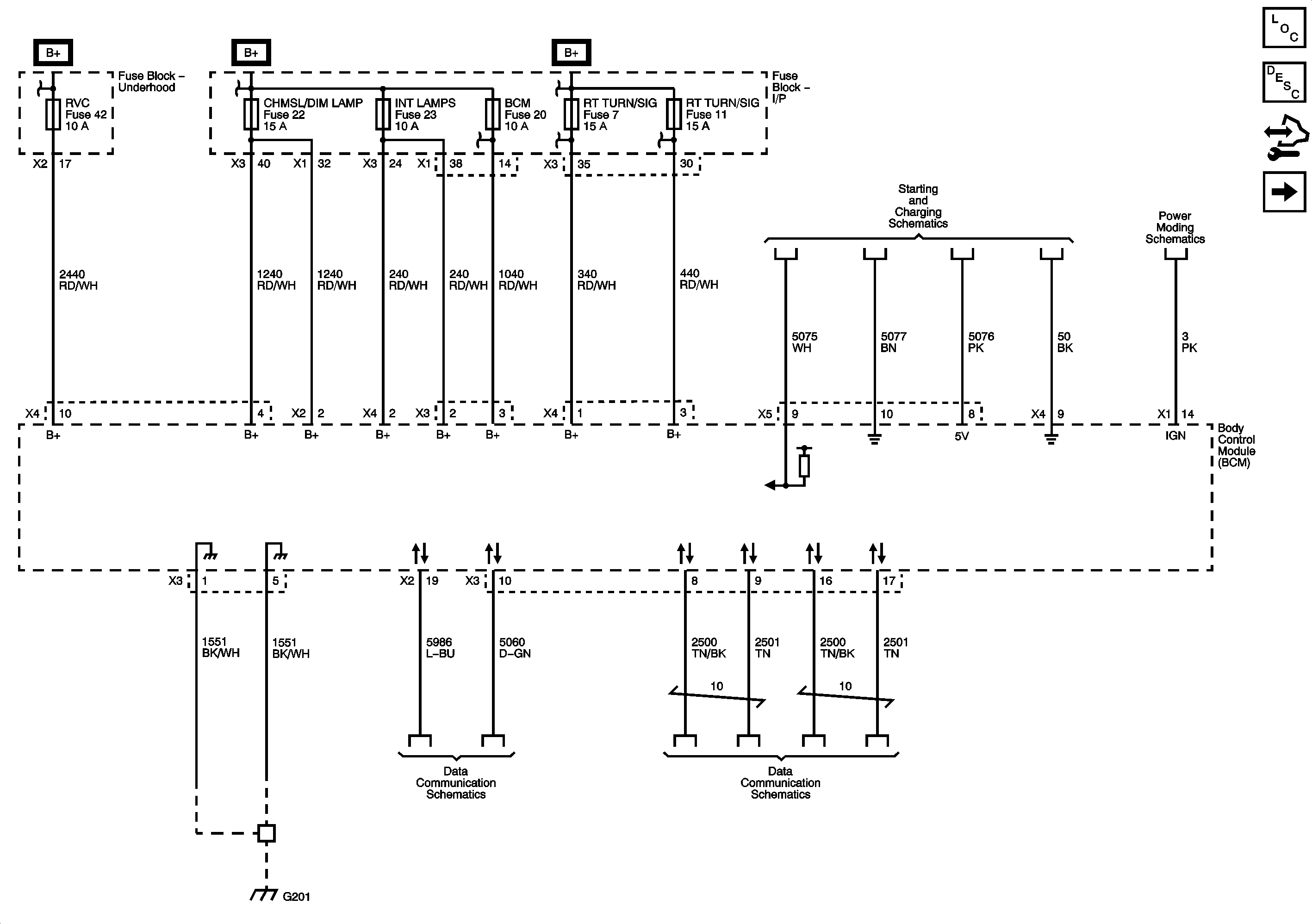
GM Service Manual Online
For 1990-2009 cars only
Figure 1:

Power and Ground, Starting and Charging


Object Number: 2086441  Size: FS
Master Electrical Component List
Body Control System Description and Operation
Control Module References
Exterior Lights, Radio, Data Communications, ABS, A/T, and Ignition Lock
BATT MAIN 1, CAN VENT, CLSTR, HVAC BLOWER, INFO, INT LTS, ONSTAR, REAR DEFOG, and RVC Fuses
AMP, BCM, CHMSL/DIMR, HVAC/RFA, and RDO Fuses
BATT MAIN 1, CAN VENT, CLSTR, HVAC BLOWER, INFO, INT LTS, ONSTAR, REAR DEFOG, and RVC Fuses
AMP, BCM, CHMSL/DIMR, HVAC/RFA, and RDO Fuses
AOS MODULE, BATT MAIN 2, HTD/SEATS, L/GATE, LT TRN/SIG, PWR MIRS, RT TRN/SIG and SIR Fuses and POWER SEATS Circuit Breaker
AOS MODULE, BATT MAIN 2, HTD/SEATS, L/GATE, LT TRN/SIG, PWR MIRS, RT TRN/SIG and SIR Fuses and POWER SEATS Circuit Breaker
Charging
Ignition Switch and IGN MAIN Relay
G201
Low Speed GMLAN
High Speed GMLAN
Figure 2:

Exterior Lights, Radio, Data Communications, ABS, Automatic Transmission, and Ignition Lock


Object Number: 2086443  Size: FS
Master Electrical Component List
Body Control System Description and Operation
Control Module References
Shift Lock, Headlights, Cruise, Wiper, and I/P
Power and Ground, Starting and Charging
Fog Lights Schematics
Left Park Lamps
Turn Signal Lamps
Trailer Wiring
Steering Wheel Controls
Stop Lamps
Serial Data, Traction Switch, and Instrument Panel
Ignition Lock Schematics
Module Power, Ground and Data Communication
Figure 3:

Shift Lock, Headlights, Cruise, Wiper, and Instrument Panel


Object Number: 2086446  Size: FS
Master Electrical Component List
Body Control System Description and Operation
Control Module References
Interior Lights, Door Locks, Exterior Lights, Release Systems, Moveable Windows, and Horns
Exterior Lights, Radio, Data Communications, ABS, A/T, and Ignition Lock
Shift Lock Control Schematics
Headlights/Daytime Running Lights (DRL) Schematics
Cruise Control Schematics
Front Wiper
Indicators
Audible Warnings Schematics
Figure 4:

Interior Lights, Door Locks, Exterior Lights, Release Systems, Movable Windows, and Horns


Object Number: 2086451  Size: FS
Master Electrical Component List
Body Control System Description and Operation
Control Module References
Shift Lock, Headlights, Cruise, Wiper, and I/P
Interior Lights Schematics
Interior Lights Dimming Schematics
Ignition Switch and IGN MAIN Relay
Door Locks
Backup Lamps
Door Lock Switches and Latches
Power Windows
Immobilizer Schematics
Release System Schematics
Horn Schematics