GM Service Manual Online
For 1990-2009 cars only
Makes
🢒
Cadillac
🢒
2007
🢒
SRX
🢒
Transmission/Transaxle
🢒
Automatic Transmission - 5L40-E/5L50-E
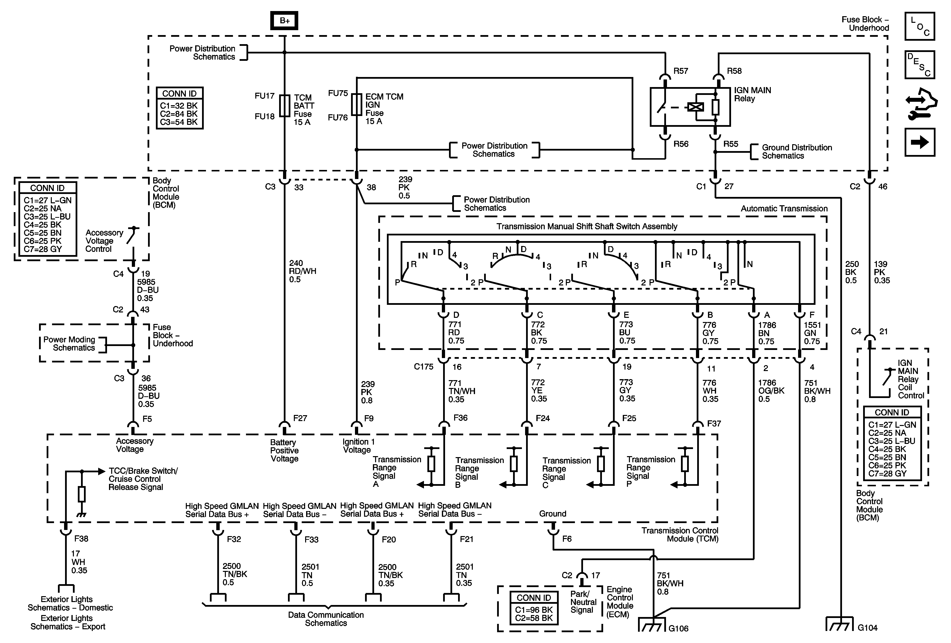
🢒 Automatic Transmission Controls Schematics
Figure
1:
Power, Ground, Serial Data, and Switches
Master Electrical Component List
Electronic Component Description
Control Module References
Sensors and Solenoids
Underhood Fuse Block B+ Bus - 2 of 2
Underhood Fuse Block B+ Bus - 2 of 2
G104 (2 of 2)
IGN MAIN Relay, ABS IGN Fuse, AIRBAG Fuse, ECM TCM IGN Fuse, and MISC IGN Fuse
Power Modes - ACCY and RAP
Stop Lamps - Domestic
Stop Lamps - Export
High Speed GMLAN
G106, G111, G306
G104 (2 of 2)
Figure
2:
Sensors and Solenoids
Master Electrical Component List
Electronic Component Description
Control Module References
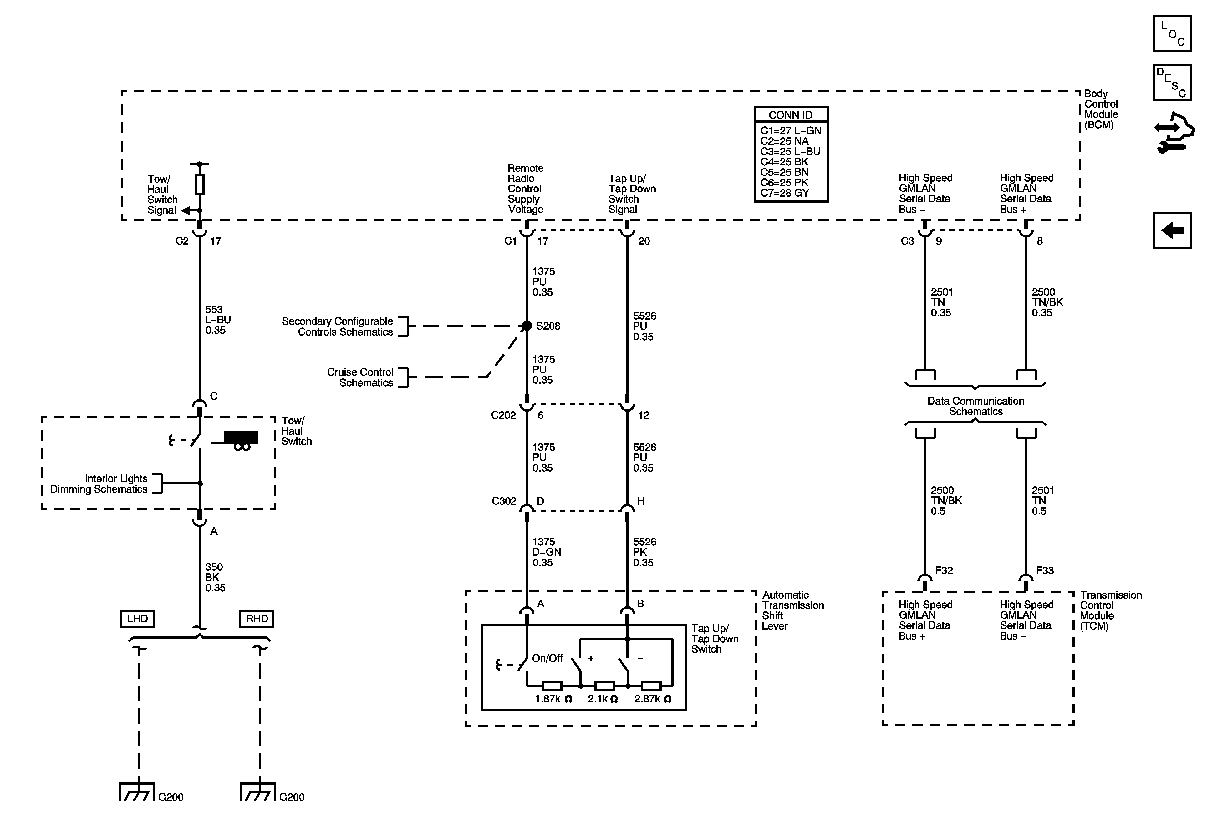
Tap Shift System
Power, Ground, Serial Data and Switches
Automatic Transmission Schematic Icons
Figure
3:
Tap Shift System
Master Electrical Component List
Electronic Component Description
Control Module References
Sensors and Solenoids
Steering Wheel Controls Schematic
Cruise Control Schematics
High Speed GMLAN
Dimming Lamps (1 of 3)
G200 (1 of 2) LHD
G200 2 OF 2 (RHD)