GM Service Manual Online
For 1990-2009 cars only
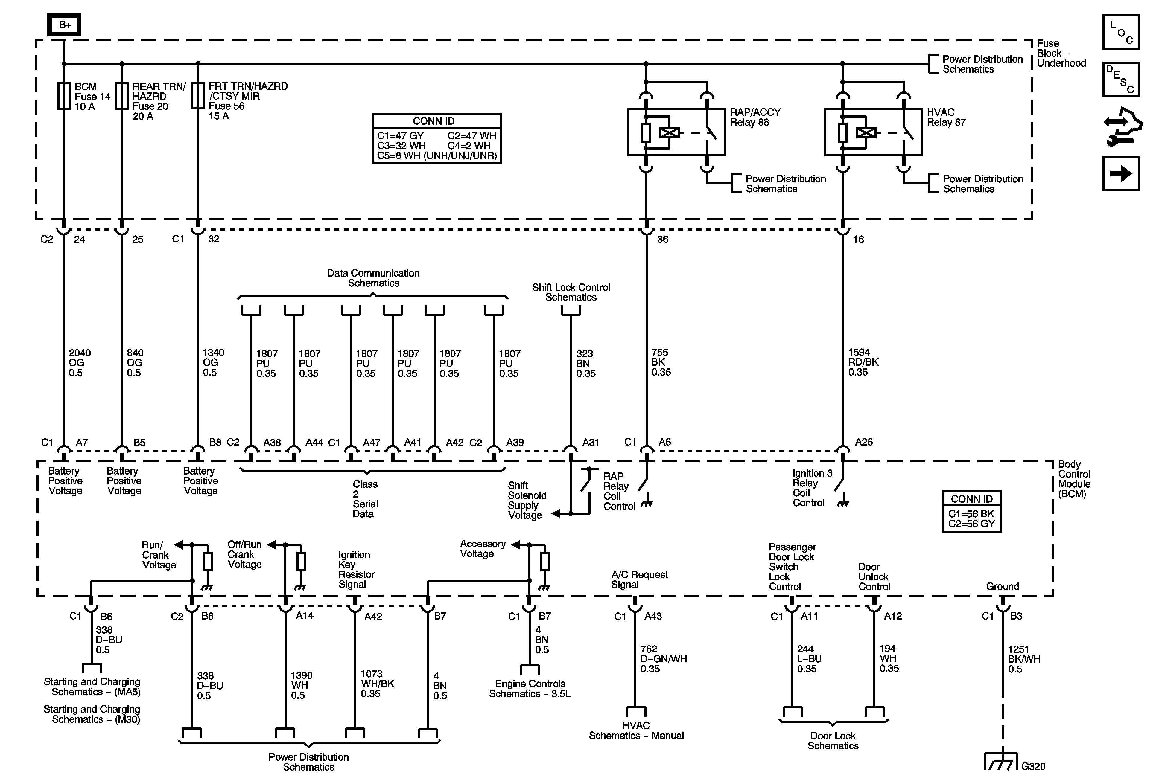
Figure 1:

Power, Ground, and Subsystem References to DLC, A/T Shift Lock Control, HVAC, Starting and Charging, Engine Controls, and Door Lock/Indicator Systems


Object Number: 1777870  Size: FS
Master Electrical Component List
Body Control System Description and Operation
Control Module References
Subsystem References to ABS, Horn, Theft, and Wiper/Washer Systems
B+ Bus - Underhood Fuse Block - 1 of 2
HVAC BLWR, HVAC CNTRL HD, PWR HTR SWTCH, TCCM SWTCH, and VSES/ABS Fuses
ETC, LT PWR WNDW, O2 SNSR, REAR/WPR MTR, REAR WPR SWTCH/PUMP, RT PWR WNDW, SPO, AND S/ROOF FRT/WPR Fuses
Data Link Connector (DLC) Schematics
Shift Lock Control Schematics
Starting System - MA5
Starting System - M30
Ignition Switch and BATT IGN SWTCH Fuse
Module Power, Ground, Serial Data, MIL, and DLC
Module Power, Ground, and Blower Motor
Power Door Locks
G300, G310, and G320
Figure 2:

Subsystem References to ABS, Horn, Theft, and Wiper/Washer Systems


Object Number: 1777904  Size: FS
Master Electrical Component List
Body Control System Description and Operation
Control Module References
Subsystem References to Doors, Interior Lights and Interior Lights Dimming Systems
Power, Ground and Subsystem References to DLC, A/T Shift Lock Control, HVAC, Starting and Charging, Engine Controls, and Door Lock/Indicator Systems
Vehicle Theft Deterrent
Horns Schematics
OnStar Schematics
Indicator Lamps and Traction Control Switch
Windshield Washer Fluid Pump and Windshield Wiper Motor
Figure 3:

Subsystem References to Doors, Interior Lights and Interior Lights Dimming Systems


Object Number: 1777910  Size: FS
Master Electrical Component List
Body Control System Description and Operation
Control Module References
Subsystem References to Exterior Lighting and Fog Lights
Subsystem References to ABS, Horn, Theft, and Wiper/Washer Systems
Dome Lamp, Footwell Courtesy Lamps, and Vanity Mirror Lamps
Outside Rearview Mirror Schematics
Door Jamb Switches
Interior Lights Dimming Schematics
Figure 4:

Subsystem References to Exterior Lighting and Fog Lights


Object Number: 1777920  Size: FS
Master Electrical Component List
Body Control System Description and Operation
Control Module References
Subsystem References to Doors, Interior Lights and Interior Lights Dimming Systems
Ambient Light Sensor, Headlamp Controls and Switches
Headlamps
Ambient Light Sensor, Headlamp Controls and Switches
Headlamps
Ambient Light Sensor, Headlamp Controls and Switches
Headlamps
Fog Lights Schematics
Hazard Switch, Park Lamp Control, and Turn Signal/Stop Lamp Inputs
Turn Signal/Stop Lamps
Hazard Switch, Park Lamp Control, and Turn Signal/Stop Lamp Inputs