GM Service Manual Online
For 1990-2009 cars only
Figure 1:

Power, Ground, and DLC


Object Number: 1782660  Size: FS
Master Electrical Component List
Body Control System Description and Operation
Control Module References
Accessory, HVAC Blower High and Run Relay
Underhood Fuse Block IBCM 1 Fuse, BCM AIRBAG (BATT), CLUSTER/THEFT, HVAC CTRL (BATT), IGN SENSOR and RADIO Fuses and Ignition Switch
Underhood Fuse Block IBCM 1 Fuse, BCM AIRBAG (BATT), CLUSTER/THEFT, HVAC CTRL (BATT), IGN SENSOR and RADIO Fuses and Ignition Switch
BCM INTERIOR LIGHTS, ONSTAR, PEDAL and POWER MIRRORS Fuses
07 G6-Underhood Fuse Block IBCM 2 Fuse, BCM ACCESSORY Relay, DOOR LOCK, POWER WINDOWS, ROOF/HEAT SEAT and WIPER SW Fuses
Power, Ground, High Speed GMLAN Serial Data
Low Speed GMLAN Serial Data (1 of 2)
Low Speed GMLAN Serial Data (2 of 2)
Underhood Fuse Block IBCM 1 Fuse, BCM AIRBAG (BATT), CLUSTER/THEFT, HVAC CTRL (BATT), IGN SENSOR and RADIO Fuses and Ignition Switch
Remote Function Schematics
G201
G203
G304 and G305
Figure 2:

ACCESSORY, HVAC BLOWER HIGH and RUN Relays


Object Number: 1782662  Size: FS
Master Electrical Component List
Body Control System Description and Operation
Control Module References
Controlled/Monitored Subsystem References 1 or 3
Power, Ground and DLC
Underhood Fuse Block B+
07 G6-Underhood Fuse Block IBCM 2 Fuse, BCM ACCESSORY Relay, DOOR LOCK, POWER WINDOWS, ROOF/HEAT SEAT and WIPER SW Fuses
Underhood Fuse Block RBEC 2 Fuse and RUN RLY, BCM HVAC BLOWER HIGH and RUN Relays, HVAC BLOWER and HVAC CTRL (IGN) Fuses, Rear Fuse Block FUEL, PARK LPS and TRUNK Relays, DRV ST, EMISSION 2, FOLDING T
Blower Motor Controls, Ground and Power
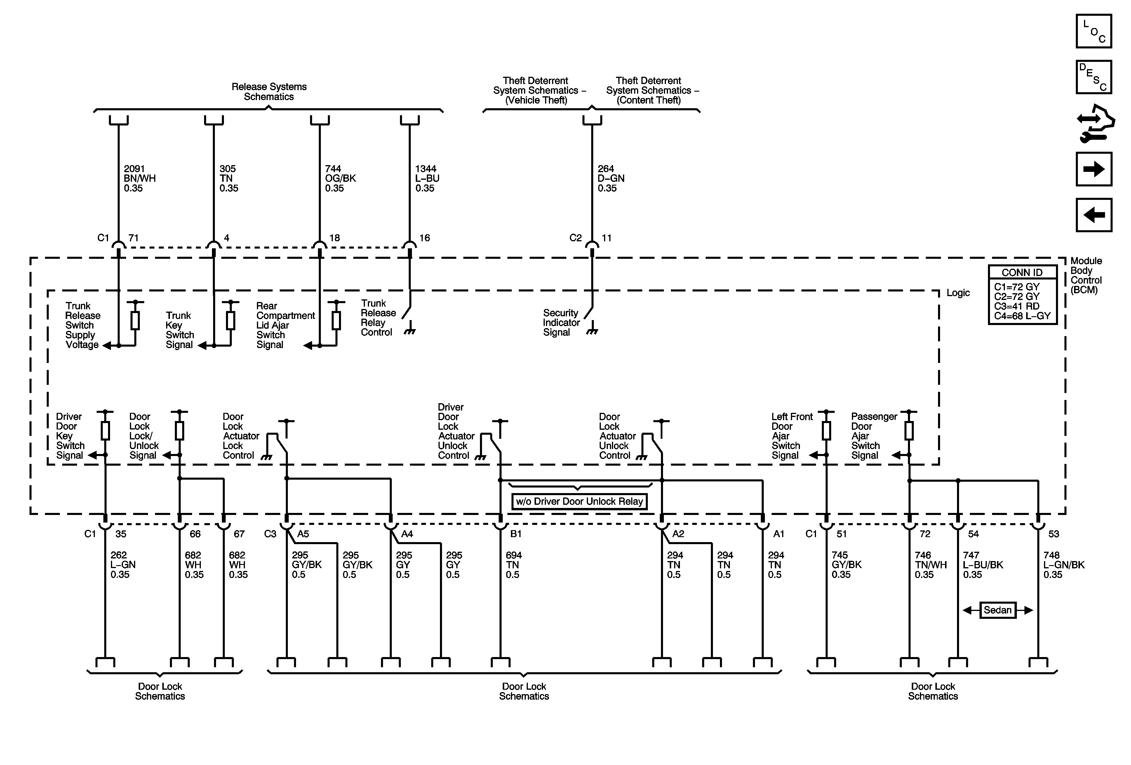
Figure 3:

Controlled/Monitored Subsystem References (1 of 3)


Object Number: 1782664  Size: FS
Master Electrical Component List
Body Control System Description and Operation
Control Module References
Controlled/Monitored Subsystem Reference 2 of 3
Accessory, HVAC Blower High and Run Relay
Release Systems Schematics
Theft Deterrent System Schematics
Immobilizer Schematics
Door Lock Switches
Door Lock Actuators
Door Ajar Indicators
Figure 4:

Controlled/Monitored Subsystem References (2 of 3)


Object Number: 1782666  Size: FS
Master Electrical Component List
Body Control System Description and Operation
Control Module References
Controlled/Monitored Subsystem References 3 of 3
Controlled/Monitored Subsystem References 1 or 3
Headlights and Daytime Running Lights (DRL) Schematics
Fog Lights Schematics
License Lamps and Backup Lamps
Turn Signals and Stop Lamps
MAF, VSS and Extended Brake Travel Switch
Ambient Light Sensor, Brake Pedal Position Sensor, Hazard Switch, and Turn Signal/Malfunction Switch
Park Lamps
Outputs (Coupe/Sedan)
Dimmer Switch Inputs
Dimmer Switch Inputs
Figure 5:

Controlled/Monitored Subsystem References (3 of 3)


Object Number: 1782667  Size: FS
Master Electrical Component List
Body Control System Description and Operation
Control Module References
Controlled/Monitored Subsystem Reference 2 of 3
DLC, Ground, MIL and Power
DLC, Ground, MIL and Power
Power, MIL, DLC, Ignition Switch and Ground
DLC, Ground, MIL and Power
BCM, Tap Up/Tap Down Switch
Manual Transmission Schematics
Tap Up/Tap Down Switch (LZ4)
Tap Up/Tap Down Switch
Ambient Air Temperature Sensor and Compressor Controls
Ambient Air Temperature Sensor and Compressor Controls
Brake Pedal Position Sensor and Traction Control Switch
Hydraulic Brake Schematics
Steering Wheel Controls - 3 Spoke
Adjustable Pedal Schematics
Defogger Schematics
Horn Schematics
Washer System